防爆区域划分和防爆电气设备标准解读
防爆区域划分:
1、爆炸危险场所的定义
爆炸危险场所的分类:爆炸危险场所按爆炸性物质的物态,分为气体爆炸危险场所和粉尘爆炸危险场所两类。
爆炸性气体环境的分区:根据爆炸性气体环境出现的频率和持续时间把危险场所分为0区、1区和2区三个区域等级。
0区:爆炸性气体环境连续出现或长时间存在的场所;
1区:在正常运行时,可能出现爆炸性气体环境的场所;
2区:在正常运行时,不可能出现爆炸性气体环境,如果出现也是偶尔发生并且仅是短时间存在的场所。

2、防爆区域划分的标准
① SY/T 6671-2006 石油设施电气设备安装区域一级、0区、1区和2区区域划分推荐作法;
② GB 50058-2014 爆炸危险环境电力装置设计规范。


3、防爆区域的划分及解读
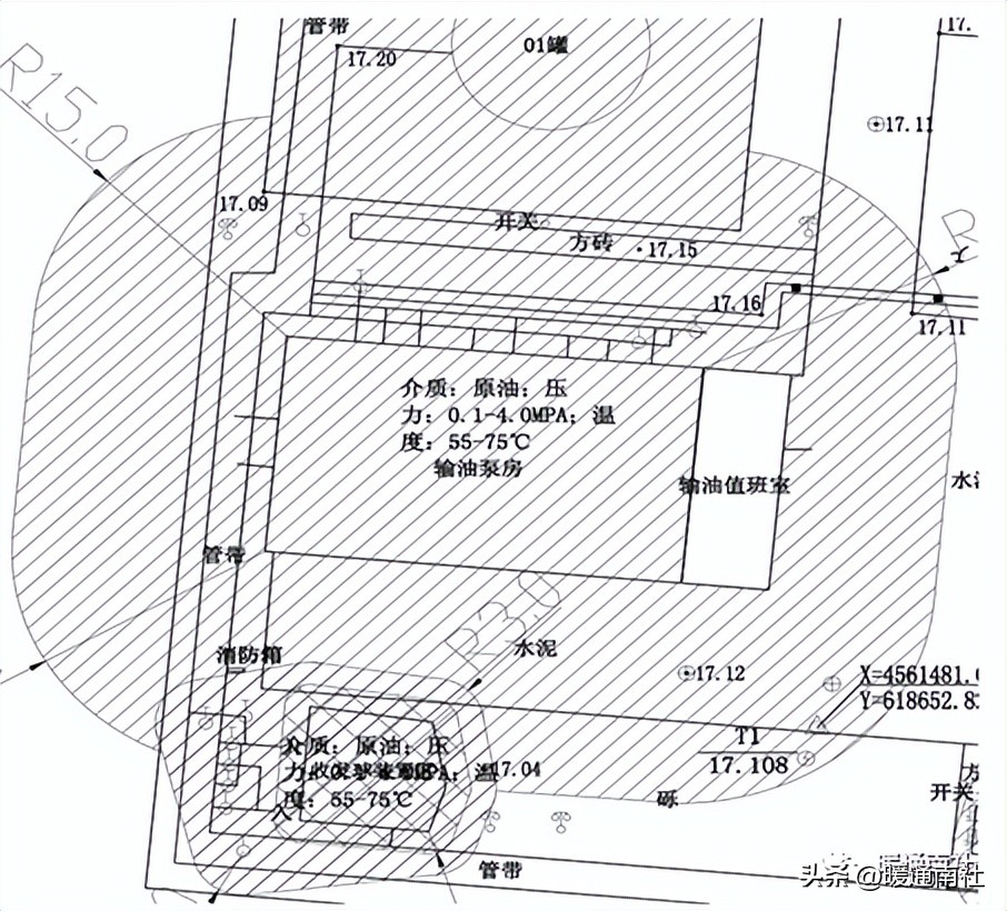
⑴ 输油泵房(压力≤1.9Mpa)
1、依据的标准
① 安装电气设备的房间应用非燃烧体的实体墙与爆炸危险区域隔开;
② 传动轴传动通过隔墙处,应采用填料函密封或有同等效果的密封措施;
③ 安装电气设备房间的出口应通向非爆炸危险区域的环境;
④ 液体表压P≤1.9Mpa时,有孔或开式的墙3米范围内为爆炸危险区。
2、图例说明及解析

3、存在问题
① 输油泵房电机端与泵端之间的隔墙为非气密性结构,爆炸性气体可从泵房进入电机间。

② 电机间与值班室工具间有开门,爆炸性气体可从电机间进入值班室。

③ 泵房值班室内安装的均为非防爆设备,爆炸性气体可进入值班室。

④ 泵房门与值班室西侧可开启窗户距离小于3米;泵房工具间南侧窗户与电机间北侧的窗户距离小于3米,爆炸性气体可进入值班室。

4、整改建议
① 封堵电机间与值班室工具间之间的门,工具间重新设置门;
② 值班室西侧窗户、工具间南侧窗户更换为不可开启的密闭窗户;
③ 电机间
(1)电机间按防爆区域划分:非防爆电机更换为防爆电机;
(2)电机间按非防爆区域划分:加强泵房电机端与泵端之间隔爆墙的气密性;在电机间加装可燃气器报警装置进行监测。
5、防爆区域划分前后对比图

⑵ 输油泵房 (压力>1.9Mpa)
1、依据的标准
① 液体表压P>1.9Mpa时,有孔或开式的墙15米范围内为爆炸危险区;
② 位于爆炸危险区的控制室电气和仪表的设备层地面应高出室外地面0.6米。

2、图例说明及解析


⑶ 输、供气装置区
1、依据的标准
① 气体表压P≤1.9Mpa时,释放源半径3米范围内为爆炸危险区;
② 气体表压P>1.9Mpa时,释放源半径7.5米范围内为爆炸危险区。
2、图例说明及解析


3、存在问题
防爆区域内使用非防爆设备。

⑷ 加热炉
1、依据的标准
在生产过程中使用明火的设备附近,或炽热部件的表面温度超过区域内可燃物质引燃温度的设备附近可划为非爆炸危险区域;

说明:
① 一般情况下,明火设备如锅炉采用平衡通风,这样就能保持炉膛负压,可燃性物质不能扩散至设备附近与空气形成爆炸性混合物,因此明火设备附近按照非危险区考虑,包括锅炉本身所含有的仪表等设施;
② 本规范建议与锅炉设备相连接的管线上的阀门等可能有可燃性物质存在处按照独立的释放源考虑危险区域,并可根据通风良好的场所适当降低危险区域的等级。
2、图例说明及解析

3、存在问题
① 加热炉值班室与加热炉间有开门,爆炸性气体可从加热炉间进入值班室。

4、整改建议
① 封堵加热炉值班室与加热炉间之间的门。
5、防爆区域划分前后对比图

⑸ 室外输油管线
1、依据的标准:
① 没有阀门、法兰或类似装置的、全部为焊接连接的管道系统或连续的金属管道无需划分区域。
② 存在阀门、法兰或类似装置的,需划分区域。
2、图例说明及解析


防爆区域内的防爆电气设备:
1、防爆电气设备的标准
① AQ3009—2007 危险场所电气防爆安全规范;
② GB3836.1—2010 爆炸性环境 第1部分:设备通用要求。
2、存在问题
通过对各输油、输气站防爆区域内的防爆电气设备进行检查汇总,主要存在以下三个问题:
① 产品本身质量问题
② 安装施工问题
③ 检修维护问题
3、标准解析

依据标准:
(1)AQ3009-2007表10电气设备结构不存在可见的未经批准的修改;
(2)AQ3009-20076.1.2.1.2 防爆电气设备的铭牌、防爆标志、警告牌应正确、清晰;
(3)AQ3009-20076.1.2.2.2 隔爆型电气设备隔爆面应有防腐措施。应防止水进人接合间隙。接合面不得用使用中变硬的物质处理。

依据标准:
(1)AQ3009-20076.1.2.2.6 电缆和导管引入系统应符合6.1.1.2和6.1.1.3的相关要求;电气设备的电缆或导线引入口需用钢管连接时,宜用一个过渡压紧元件,达到先压紧密封圈后才可连接钢管,钢管连接有困难可增加活接头;
(2)GB3836.1-2010附录A A 2.3.1总则 电缆引入装置应能夹紧电缆,以防电缆受到的拉力或扭矩传到连接件上。

依据标准:
(1)AQ3009-20076.1.2.2.1安装设备时,应注意防止隔爆接合面与固体障碍物之间的距离符合规定的数值,即隔爆面距外护罩或障碍物距离Ⅱb>30mm;
(2)AQ3009-20076.1.1.3.11防爆挠性连接管应无裂纹、孔洞、机械损伤、变形等缺陷,其安装时应符合弯曲半径不应小于管外径的5倍。

依据标准:
(1)AQ3009—2007 6.1.1.3.2 导管与电气设备间的连接应满足相应的防爆型式要求。

① 备用接口丝堵用塑料材质堵头封堵,未使用配套的金属材质堵头封堵;② 备用接口丝堵采用防爆胶泥封堵;③ 隔爆面缠生料带。
依据标准:
(1)AQ3009-20076.1.2.1.7 电气设备多余的电缆引入口应用适合于相关防爆型式的堵塞元件进行堵封;
(2)AQ3009-20076.1.2.2.2 隔爆型电气设备隔爆面应有防腐措施。应防止水进入接合间隙。接合面不得用使用中变硬的物质处理。

依据标准:
(1)GB3836.1-201015.1.2 电气设备的金属外壳应设置辅助的等电位导体外部连接件;
(2)AQ3009-2007表10 电气设备所有的紧固件应完整,防松设施齐全,弹簧垫圈压平。铜铝之间容易起化学变化;
(3)GB3836.1-201015 外接地连接到专用接地连接件上。

依据标准:
(1)AQ3009-2007表11外表衬垫状态良好,无老化现象;
(2)AQ3009-20076.1.2.1.4 防爆电气设备的紧固螺栓应有防松措施,无松动和锈蚀;
(3)AQ3009-20076.1.2.1.2 防爆电气设备的铭牌、防爆标志、警告牌应正确、清晰。

依据标准:
(1)AQ3009-2007表10 第6条电气设备所有的紧固件应完整,防松设施齐全,弹簧垫圈压平;
(2)AQ3009-20076.1.2.1.4 防爆电气设备的紧固螺栓应有防松措施,无松动和锈蚀。
4、整改效果


247
172
198
173
174
242
247
202
215
153 Copyright © 2012-202X
苏ICP备12014991号-8
联系邮箱:18951535724