不同的户型多变的设计,株洲5大热门楼盘户型设计案例展示!
一套户型,在不同的设计师眼中,有上百种方式使其改头换面,但如何做到美观、实用、环保又同时能节约成本预算,那就是一门费脑的功夫了。这里小编列举了株洲5大热门楼盘户型解析案例,先看看别家怎么设计的,轻松找到属于你家的装修解决方案。
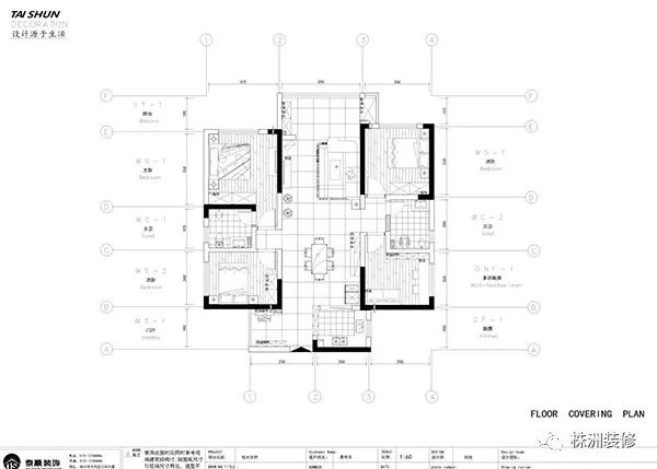
【恒大华府 150㎡ 美式】
【装修费用】16万
【户型结构】:四居室


户型分析:
1.南北通透且采光条件很好,层高适中
2.阳台面积较大,采光较好
3.含独立门厅,空间整体性较强.

设计说明:美式风格家居自由随意、简洁怀旧、实用舒适客厅天花板采用嵌入式石膏吊顶,搭配精致的水晶吊顶,营造出一种怀旧、浪漫的感觉。以大理石作为地面装饰材料,光泽感极佳,空间区域划分更加清晰,让美式风格得以进一步的彰显。
【慧谷阳光 120㎡ 法式】
【装修费用】:12万
【户型结构】:三居室


户型分析:格局方正,南北通透,自然采光,功能齐全。主卧豪华套房设计,自带卫生间,彰显主人尊贵气质,自带超大景观阳台,吸纳充裕明媚阳光,阳台、客厅、卧室层层递进,动静分离,构成最佳人居动线。

设计说明:体现法式浪漫之地,法国装饰艺术风格最集中体现在家具的设计方面,要特征在于布局上突出轴线的对称,恢宏的气势,高雅典雅。细节处理上注重雕花、线条,制作工艺精细考究。
【金域天下140㎡ 简欧】
【装修费用】:15万
【户型结构】:三居室


户型分析:南北通透,主卧较大,户型比较方正,客餐厅规整,整个户型采光和通风非常好。

设计说明:这套住宅风格以其典雅,高贵的气质见长,在颜色上使用浅色体现了空间的宽敞,但又使用一些不失沉稳的深色装饰融合在里,成为不可或缺的一道风景,深色的材料与家具突出了室内的文化气质,更好的体现了主人的气质与修养。
【湘银星城 140㎡ 现代】
【装修费用】:14万
【户型结构】:三居室


户型分析:户型比较方正,客餐厅规整,含独立门厅,空间整体性较强,整个户型采光和通风非常好。

设计说明:设计的主要思想是将空间的合理布局,使其满足舒适的生活需求。现代风格强调突破传统,创造新建筑,重视功能和空间组织,注意发挥结构构成本身的形式美,造型简单、时尚,反对多余装饰,崇尚合理的构成工艺,尊重材料的性能,讲究材料自身的质地和色彩的配置效果,发展了非传统的以功能布局为依据的不对称的构图手法,一切皆为了求新求变。
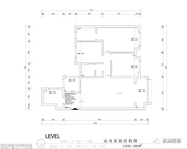
【三一歌雅郡 123㎡ 地中海】
【装修费用】:14万
【户型结构】:三居室




如果,你还在为看房子装修东奔西跑?
那么,把这些问题统统丢给设计师吧!
如果你也想免费设计→平面布置图→实景效果图,报名参加10月27日的株洲在线线下户型设计解析会吧!报名后,凭借户型图参与活动可以领取精美礼品一份哦!

86
128
185
146
157
95
211
138
117
997 Copyright © 2012-202X
苏ICP备12014991号-8
联系邮箱:18951535724