帝都56㎡手枪户型:谁说老破小没春天?

北京老破小,实在算不上「舒适住宅」。
又老又破还不是最糟的,从户型开始,就是地狱难度:手枪形状、紧紧巴巴、看不到「生活」的落脚之处。
但好在有专业过硬的设计师,将难题一一化解,看这明亮舒坦的小屋,谁还能想到这是套内 56㎡ 的老破小呢?




城中有窝、郊区有院,是很多北京人的理想生活。屋主 Katherine G 一家在退休前就已经实现。
工作日,屋主的主线任务是陪读,一家三口蜗居在西城一个 56㎡ 学区房,孩子学习、饮食起居都在一块儿,到了周末,再回郊区大院,养花种草。
习惯了郊区回归自然的日常,他们也希望把这份「自然松弛感」搬进城市中央的老房子里。

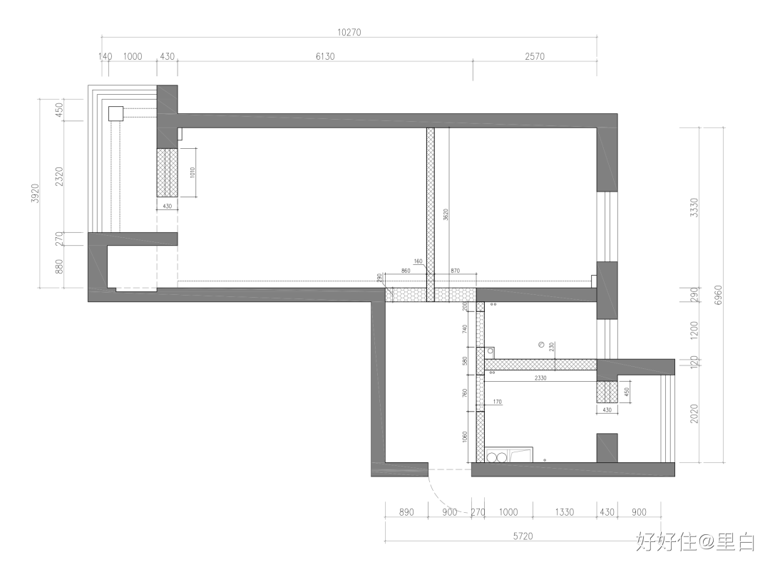
改造前
这个建面 72㎡,套内面积 56㎡ 的小两居,是显而易见的「手枪」户型,枪头和枪尾都有窗,好处是天然的光线能跑遍全屋。
缺陷是:
1.户型面积浪费严重,尤其是进门的走廊;
2.最大的两个空间只作为卧室使用,一家人缺少在公共空间里的交流和互动;
3.整个格局动线也很混乱,卫生间没有干湿分离,早高峰一家人只能轮流使用;
4.全家人的书籍、物品比较多,缺乏储物空间。

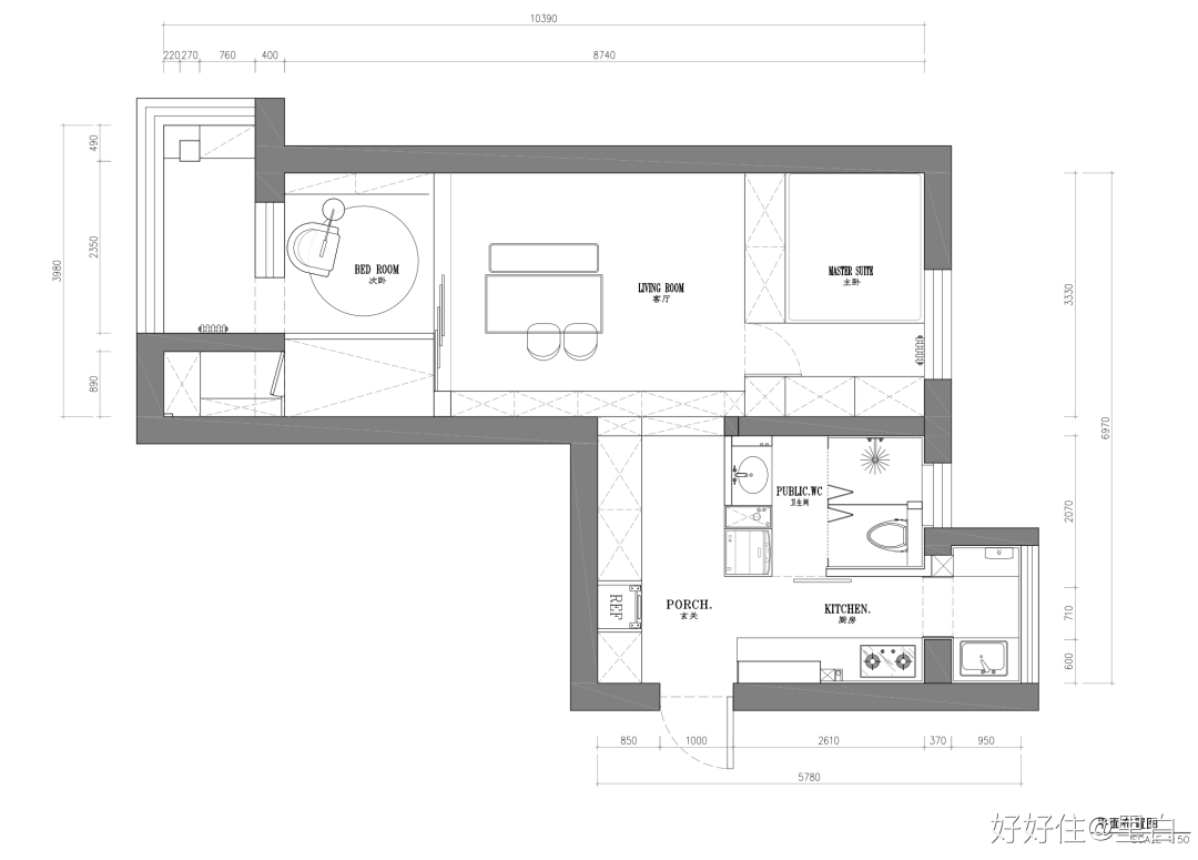
改造后
硬装上:
1.拆掉所有非承重墙,用柜子作为空间的隔断;
2.厨房做成半开放式,并对布局做最大程度的优化,转移部分西厨功能给到走廊,增加吧台,扩充收纳空间;
3.卫生间向厨房拓宽71公分,做成相对独立的三分离,并在干区用柜子包出一个洗衣区,考虑供水方位不能动的问题,地面做了抬高处理;
4、缩小主卧,放大公共区域,采光最好位置留给了多功能起居,利用榻榻米和上下铺的组合,满足多人居住需求,再用四联动门分隔空间;
5.客厅采取桌子+书架的形式,满足屋主一家日常阅读就餐。

改造后,这个家没有传统意义上的客厅,起居只有书房和榻榻米。
都说最好的学校是家庭,完成整个设计的过程里,我们完全没有看到家长「鸡娃」的无形压力,恰恰觉得他们家这个装下四季的书屋型客厅,便是最好的「学区房」。


一进门,原先走廊靠墙植入一个长达 3.38 米,进深 60 公分的柜体系统,化零为整的功能融合,最大程度提高走廊利用率。


这样一来,合理塞下了玄关柜以及从厨房外移出来的冰箱,西厨功能。

西厨中间镂空,设置台面+开放格,方便业主回家顺手放钥匙等物品,还能作为家庭咖啡角,右侧设计的抽拉窄柜,平时冲泡的咖啡、饮料和零食都塞在里面。
窄柜底部留空,方便扫地机器人进出,完美隐藏各种杂物。

西厨的正对面是一面大镜子,方便出门整理仪容,也给过道有一个放大的视觉效果。

要尽可能地增加收纳空间,我们的主张是能不建墙就尽量不建墙,用柜子代替。
所以这个贴着镜子的柜子背面,是为装下洗衣机和烘干机而设,洗衣液、柔顺剂之类的物品也能插着空收纳。中间的柜子靠走廊一侧,还包住了老房子的下水管,里面还藏着软水机。


我们希望给屋主一个自带风景的厨房,一边看着窗外葱郁的景色,做饭的心情也不自觉变得愉悦。好在原先的厨房就有这个条件,北向的小阳台纳入厨房,形成一个走廊型开放式厨房。


格局调整后,重新梳理下厨动线,洗菜区、洗碗机、碗柜放在阳台,左侧作为备菜区和碗柜,右侧是水槽+洗碗机,备菜洗碗都很便捷,下水也不用改。

然后衔接烹饪烘焙区,这么调整,既有清晰的功能分区,又有效地放大了空间,就算厨房给了一点面积给卫生间,也没有闭塞感。

灶台的右手边,一面洞洞板方便拿取调料、工具、剪刀,方便玄关、厨房两边使用。

台面下增加了一个折叠桌,当人多在厨房帮忙的时候,还能分担一部分台面操作的压力。


厨卫相邻,卫生间和厨房之间采用了幽灵门,关上就能避免两个空间之间串味,同时也保护了卫生间的隐私。

卫生间也是一个强功能空间,打开就是洗衣区,再进来就是干爽舒适的盥洗区。


原本的卫生间有小窗户,卫生间干湿分区,通过玻璃隔断,让淋浴如厕可以共享自然光。


盥洗镜与洗脸池的中间留了一个可以透光的小窗,可以将自然光引入更深的走廊区域,逼仄的空间立马变得透气了。

晚上,当卫生间有人使用时,能透过这里看到卫生间的灯在亮着,起到一个隐隐提醒的作用。


我们打通阳台和客厅,模糊两者边界,解锁了一个学习陪伴型多功能客厅,没有沙发,用榻榻米替代,坐卧都可以。

客厅主要作为学习区,所以索性去掉沙发,只要书桌和一面开放式书柜,满足一家人一起看书的习惯。

正好可以借用着这一排书墙,把空调挂机也给融合了进去,书架下面部分留了封闭收纳空间,不想展示的就放进去。


因为屋主喜欢的居家风格偏自然日式,很多常规的板材过于现代,不太符合业主给到的意向图。
索性全屋采用海洋板,表面木纹保留着原始的肌理感,侧面像威化饼干一样有层次,无需封边就很环保,起初它是作为船舶板材,最突出的就是耐潮性很好,所以甚至在厨房、卫生间这些容易不耐脏和水渍会飞的空间里,全部用上也是没有问题,还能达到统一的美感。

海洋板原本基础的颜色还离理想有些差距,经过多次打样,在落地时额外做了擦色,让呈现的木色更透出复古的质感。


紧靠阳台的区域左侧是上下铺,小孩的休息空间就在这里,下铺给他保留一个单独学习私人空间。
右侧是榻榻米,方便老人来留宿,材质颜色选了和地砖相近的颜色,让它看起来更像是地面一体,延伸扩大空间感。

地台上用海洋板打了一排小柜,睡前放置眼镜、水杯,比较顺手。画作不用上墙,和绿植闲闲放在柜子上,也很好看。


有了地台,也把整个家的亲情凝聚在一起。拉上联动门,就隔绝出一个安静的睡眠空间了。



北阳台作为日常休闲区,设计成开放格卡座,放几个软垫能坐能躺,格子里用编织篮收纳书和其他物品。闲暇在这里看书发呆,望望窗外风景,感受满屏的四季美景。



书桌旁边也是用一组双面柜作为客厅与卧室的隔断。一面作为大衣柜+家政柜使用,满足一部分通勤衣服,以及清扫用品、折叠凳、行李箱之类的物品存放。

柜子最上方留了一排风口一样的气孔,一方面是为了通风,还有一方面是让客厅空调的冷风能穿过去,因为业主并不需要直吹的冷风,也就不必要单独安装一个空调,空气能够流通就行。

卧室里,床头位置设计了一个开放格,充当床头柜作用。

床尾通顶的收纳柜,用来放置衣物,整个休息空间简单舒服。

和这个家的初心一样,阅读和学习,可以丈量生活的自由度。
设计师严丝合缝地计算尺寸,简洁利落的规划布局,「扣」出每一寸功能区的同时,也填满了家的温润暖意。
一说改造老破小,很多人都是两眼一黑。
看完今天这个家,更觉得「专业的事,交给专业的人」这话一点没错。
经验丰富、审美在线的设计师,无疑是最靠谱的装修搭子。
如果你正在计划装修
一定要看看好好住「心选装修搭子」计划




143
214
224
165
165
206
217
190
207
204 Copyright © 2012-202X
苏ICP备12014991号-8
联系邮箱:18951535724