【建筑人】这样做批量精装,每间房都是样板间!
关注公众号“土建圈”限时免费领取800G行业资料
来源:上海住宅产业化技术平台(ID:sh_replus)
精装房已成大势所趋!
日前成都市人民政府办公厅发布《关于进一步加快推进成都市成品住宅发展的实施意见》要求,到2022年底,全成都市只卖成品房。而不久前,上海、山东、杭州、海南等省市地区已经开始执行全装修政策。
截至目前,全国加入全装修队伍的省(市)已经突破10个,这既是对房企的品质管控和工程管理能力的考验,也将对房企的客服部门提出更高要求!
形势很复杂,需要我们更为全面地掌握精装修的专业基础知识。
装饰类
1. 水泥选用: 不同颜色不同选材。
2. 墙地面防水: 厚度不小于1.5mm。卫生间湿区(如沐浴房、浴缸)的墙面防水高度不低于2000mm,干区的墙面防水高度不低于500mm,且高于该区域所有给水点位置100mm。
3. 石材六面防护要求。
4. 所有石材外露切割面必须进行抛光处理。
5.地面石材铺装完成后应进行结晶或密封处理, 结晶面亮度要求不小于95°。
6. 房门配置三只合页,上部第一只合页距门顶边180mm,第二只距第一只200mm-350mm底部一只合页距门底边180mm。
7.吊杆应采用热镀锌成品螺纹杆,间距不大于800mm-1000mm。吊杆长度大于1500mm,须采用60系主龙骨或30×30mm热镀锌角钢作反支撑加固处理。
8. 吊顶要求采用成品检修孔,规格满足检修要求。
9. 墙面批灰腻子采用石膏基材料,不宜采用碳酸钙,需调入10%清油,平整度和垂直度必须横平竖直。
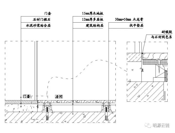
一、门套基层
门套基层板根部应与门槛石面留缝(约20mm),缝隙用柔性防水胶泥填实,木饰面板根部应与门槛石面留缝(约2~3mm),以防止水气渗入门套内引起油漆饰面变形发霉。
门框木质基层应经过三防处理(防火、防腐、防潮)。

二、纸面石膏板隔墙转角加固法
安装门洞处石膏板:若为双层石膏板隔墙,在安装第一层石膏板时,门洞上口左右两侧应用九厘板(或十二厘板,具体根据石膏板厚度确定)裁成L形替代石膏板(下图示),以加强转角的拉结牢固度;若为单层石膏板隔墙,门洞上口左右两侧石膏板应做成整体的L行。

三、电视机背景墙加固法
如安装挂画或电视机等,采用18厘多层板加固。

四、石膏板隔墙施工要求
隔墙开关盒处内衬50系副龙,以便自攻螺丝固定开关盒;隔墙隔音棉按照各项目实际情况确定。
隔墙钢筋砼地梁,需按设计图纸要求现场弹线,结构楼面预植Φ12螺纹钢,间距不大于450mm,在顶端处焊接Φ12螺纹钢连接,制模浇捣翻边,翻边处地面应预先凿毛,采用C20细石砼浇捣。

五、瓷砖施工要求
墙砖有无空鼓暴边现象、铺贴是否平整、拼缝是否一致、勾缝是否均匀饱满。

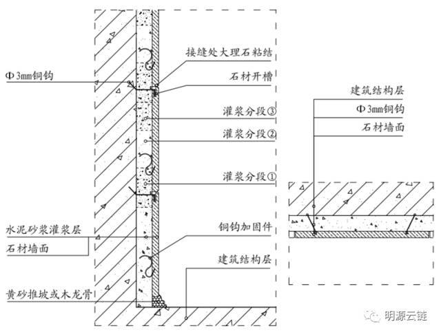
六、墙面石材灌浆法
墙面石材采用湿挂灌浆工艺,采用铜丝连接。分次灌浆,第一次不得超过石板高度的三分之一,待砂浆初凝后进行第二次灌浆,高度为石板的二分之一。第三层灌浆至低于石板上口50mm处为止。

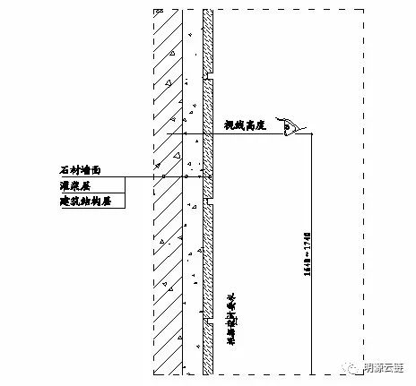
七、墙面湿作业留槽示意图
石材墙面横缝,需根据人体的视线高度排布。

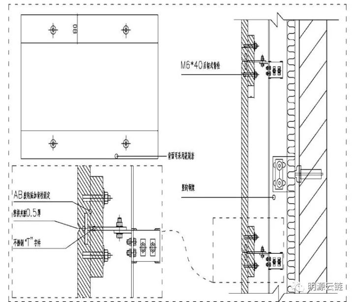
八、瓷砖或石材干挂法
石材厚度要求在25mm以上,2500mm高以内的墙体,竖向需采用5﹟槽钢,横向采用40mm×4mm型角钢,间距根据石材的横缝排版确定,2500mm高以上的墙体,竖向需采用8﹟槽钢,横向采50mm×5mm型 角钢,间距根据石材的横缝排版确定。
如是轻质墙,则需在竖向主龙骨上增加背穿螺栓,螺栓间距不大于1.2m。
挂点设置:石材长度大于600mm以上,每排不少于3个挂点。

背景石材线条干挂案例

吊顶转角加固法
转角部位第一层覆面材料采用9mm多层板,整体裁成L形代替石膏板增加拉结强度;
第一层石膏板与第二层石膏板之间需错缝铺贴,两层石膏半之间必须满涂白乳胶。
低跨造型的四个角采用0.8mm镀锌铁皮做成L型铁片,采用卡钳固定,增加拉结强度、防止变形导致开裂。
副龙骨间距300mm,造型边框四角需增加斜撑龙骨。


石膏板、石膏线接缝处开裂
吊顶挂板加固法
固定木基层结构的吊杆间距不大于600mm。
窗帘箱细木工板对接连接处需用燕尾榫进行连接,以增加窗帘箱的抗拉力,背面采用细木工板加固,每段搭接长度不小于200mm,采用自攻螺丝固定。
细木工板基层外无其他装饰材料施工的,需进行防火处理。
跌级吊顶高度大于等于200mm的侧封板时,应设置燕尾榫。

地板施工示意图
木地板靠墙处要留出9MM 空隙,以利热胀冷缩。在地板和踢脚板相交处,如安装封闭木压条,则应在木踢脚板上留通风孔。
在常温条件下,细石混凝土垫层浇灌含水率小于10%,方可铺装复合木地板面层。
木地板的铺设方向:以房间内光线进入方向为木地板的铺设方向。
有地热区域在地板铺贴时,基层不应铺设防潮膜。

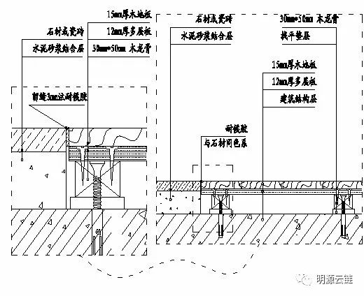
石材与地板交界处施工示意图
地板与大理石围边交接处预留3mm地板伸缩缝,采用与地板同色系的耐侯胶填缝。为防止成品受污染及控制胶缝宽直度,打胶时需先用美纹纸定位。
在近期的实际操作过程中,由于天然石材需要定期维护的需要,石材面应高于地板面2-3mm。

门槛石与地板交界处示意图

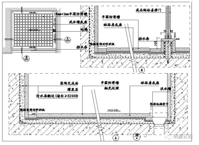
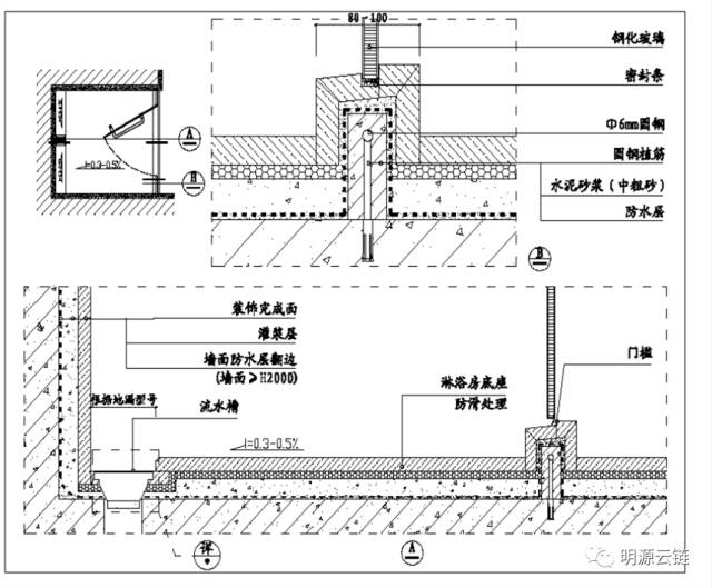
卫生间防水做法
对穿过楼板的管道,应先将管道周边的孔洞凿毛,清理干净,再用细石混凝土分层浇捣填堵,细石混凝土完成面高于结构楼板10~20mm,管道周围200mm范围内涂刷聚合物水泥基防水涂料两道,作为局部防水加强。
施工地面防水涂料时,地面防水涂料应涂刷至管壁,并高出地面完成面10~20mm。

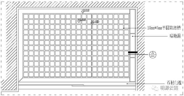
卫生间淋浴房地暖做法


淋浴房示意图1


淋浴房示意图2
卫生间施工要求
淋浴间内净空单边不大于1050mm的淋浴间,不得内开门。
卫生间淋浴间内有地暖设置 的,建议增加双地漏做法,卫生间淋浴间防水在结构楼板上进行施工。
淋浴房地面石材与墙面交界处用塑钢土封堵。

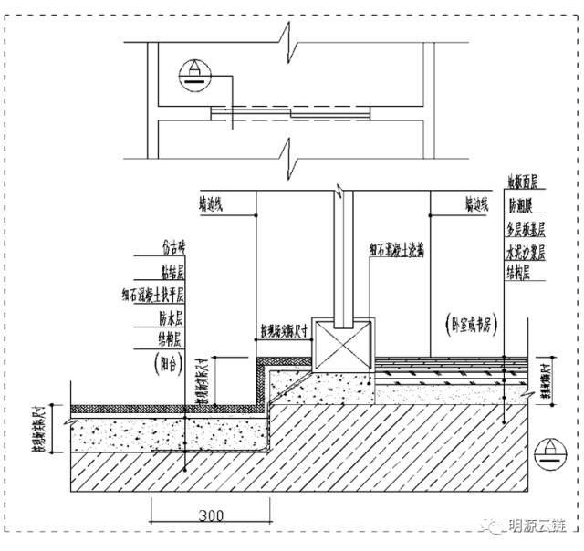
阳台防水做法
上翻梁外防水层宽度应不小于300mm。
室内结构面应高于室外结构面,室内地面完成面必须高于室外地面完成面。
阳台铝合金门槛下口采用1 : 2水泥砂浆掺JS聚合物防水砂浆胶乳填堵密实。(聚合物防水砂浆配合比: 水泥 : 砂 : 聚合物JSJ胶乳 : 水= 1 : 2 : 0.2 : 适量水。

安装类
1. 同类面板标高应一致。同一空间内的同类面板高差不应大于5mm,在同一面墙上时不应大于3mm;并列安装的同规格面板高差不应大于1mm,且间距一致。
2. 安装在同一室内的开关,宜采用同一系列的产品,开关的通断位置应一致,且操作灵活、接触可靠。
3. 开关安装的位置要求:开关边缘距套线距离宜为150mm,下口距地面高度宜为1300mm。
4. 灯具总重量小于75kg 的灯具,应采用双层18mm多层板加膨胀螺栓四点固定的方式连接在结构板(或梁)上。
5. 灯具总重量在75kg~150kg之间的,应采用化学锚栓或其他可靠方式在结构板(或梁)上设置挂钩,挂钩宜采用L60×6镀锌角钢。
6. 灯具总重量大于150kg的灯具,应采用四个Φ12以上化学锚栓与结构板(或梁)进行可靠连接,并应对连接件、结构楼板(或梁)进行受力计算后方可实施。
配电箱各出线回路导线线色应与出线开关进线线色一致,配线应整齐无铰接,导线连接紧密,线芯无损伤、断股。

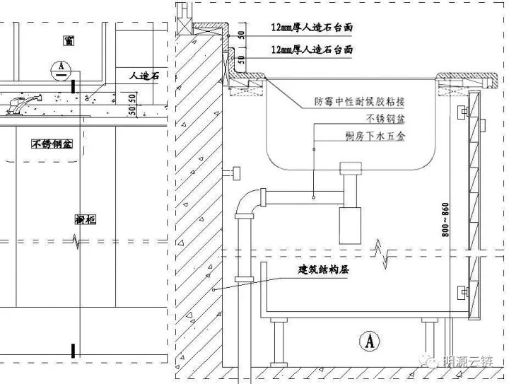
为便于台盆拆卸检修,台盆固定于固定构件上,固定构件与石材垫块用不锈钢或镀锌螺栓固定,垫块背面及台面背面粘结部位需经打毛处理用大理石胶粘结固定,台盆与固定构件连接处需用橡皮垫块,台盆与台面板下沿口用耐候胶密封。

卫生间台盆安装未做硬固定件,有安全隐患。

主吊灯基层加固法
需安装轻型吊灯的部位,应预设双层400mm×400mm的18mm多层板,板面与龙骨面齐平(多层板须采用Ø8膨胀螺栓固定在结构楼板底面,并与吊顶龙骨固定连接)。
多层板朝下一面对穿螺栓的开孔深度,以能够将螺栓帽埋入即可;不允许超过一层板的深度,否则会变成单层板受力,影响承重。
板中心开孔宜为30mm圆孔。

大型吊灯基础加固法
当灯具重量超过75kg以上时,必须按照上图增加预埋铁板和角钢挂钩的做法,铁板固定要求不少于4颗Φ10的化学螺栓;超过150kg时,应要求不少于4颗Φ12的化学螺栓固定挂钩,并应对连接件、结构楼板(或梁)进行受力计算后方可实施。
石膏板不开孔,并用美纹纸画十字交叉线精确标示出灯线位置,一方面考虑业主日后灯具安装方便;另一方面若业主不必装灯,撕掉美纹纸即可,不必对装修造成破坏或修补。

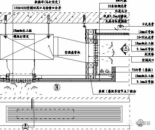
吊顶空调安装示意图1
调回风口、出风口、换气扇等处要求设置木边框,木边框宽度不小于50mm,以便于风口及设施安装。
空调出回风百页的尺寸须根据机电安装单位风量计算。
由于此节点会造成空调在制热运转下影响出风效果,对无地热的项目不宜使用此节点。


灯杯与橡塑保温管直接接触

吊顶空调安装示意图2
地漏定位需提前地面排版,实地放线,尽量设置在靠近下水管处。
地漏、排水管口径需符合排水流量要求,排水管需设置P弯。
地面找坡符合排水要求,找坡率0.3%-0.5%。
露台大于15平米或长度超过7.5米以上建议做双地漏。
建筑室内外高差较小的,建议露台设排水地沟。

地漏施工示意图

冷热水出水是否正确、是否灵活,台盆与台面是否收口美观

厨房台盆安装示意图
友情赞助
拿到一套施工图纸后怎样进行施工准备
如何进行开工策划;
如何进行现场踏勘;
如何进行读图识图;
如何进行图纸会审;
如何进行方案编制;
如何进行技术交底;
如何统筹人材机等;
后期怎样进行基础、主体结构施工管理
如何进行土方工程施工组织与技术质量管理;
如何进行防水工程施工组织与技术质量管理;
如何进行钢筋工程施工组织与技术质量管理;
如何进行模板工程施工组织与技术质量管理;
如何做混凝土工程施工组织与技术质量管理;
如何做脚手架工程施工组织与技术质量管理;
如何做施工劳务管理及过程洽商编制与管理;
如何做地基基础处理及防水渗漏治理与防治;
基础与主体施工后怎样进行装饰施工管理如何进行二次结构施工组织与技术质量管理;
如何进行楼层临边防护组织与技术质量管理;
如何进行装饰装修施工组织与技术质量管理;
如何做外墙外保温及节能工程技术质量管理;
如何进行竣工验收施工组织与技术质量管理;
如何进行竣工图的编制及竣工所需资料管理;
慢慢改变
change
你所需要的所有的施工必备技能这里全部有,强大到你难以想象。尤其是课程配合现场照片,知识点一目了然,更难得的是里面有建筑一线总工全部的施工经验及各种疑难问题处理方式,都会在课程中结合一个一个小案例展现给大家。最终你会发现这是一个全面的成体系的课程,全方位打造建造精英。
加实战技能QQ群:450728325,注明来自建筑人公众号就免费赠送《房建施工实战系列课程》价值348元一套!

209
174
114
192
132
214
232
154
231
148 Copyright © 2012-202X
苏ICP备12014991号-8
联系邮箱:18951535724