163 ㎡后现代极简风平层,淡蓝背景墙让人心都跟着放松了
项目面积:163 ㎡
设计风格:后现代极简风格
建筑形式:平层
按照我们成熟的设计流程,在设计工作开始之前,同业主进行了详细的沟通,确定了这套住房将做成后现代极简的装修风格。并且在沟通的过程中明确了业主的具体设计要求,并将这些要求记录如下
1给两个女儿没人设计一间卧室。
2男主人喜欢健身,希望在主卧室内能够规划出一块空间作为健身休闲区域。
3女主人喜欢时尚穿搭,最好还能在主卧室设计一套衣帽间供女主人使用。
4想要在餐厅位置做个小岛台。
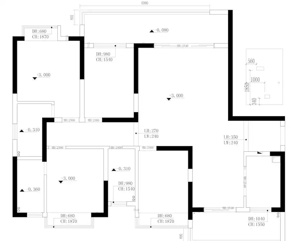
原始结构图

平面布置图

01户型图
为了实现业主的设计要求,我们在实地测量完成之后,对房屋的原始结构进行了小范围的修改,并对房屋进行了平面布置
1将阳台同其他空间之间的分隔物全部拆除。
2主卧室右手边的房间墙体拆开,让它合并到主卧室中,增加主卧室面积,沿着右侧墙体向阳台方向安装推拉门封闭整个空间。在新扩展出的空间里,靠阳台一侧设为健身区,另一半做成衣帽间。
3公卫墙体向内缩,把卫生间的盥洗区方到卫生间外面,方便随时使用。
02入户玄关

在入户门侧面设置了实用性极强的定制鞋柜,靠近门店的一侧中间位置设计为开放格,人在进门之后,可以随手将手中的钥匙、蔬菜等杂物放到这里,开放格下面的柜子可以放鞋,上面的柜子可以储物。向室内走一步,鞋柜下半部有定制的座位,可以在那里坐着换鞋。座位上方开放空间还可以挂出门常穿的衣服。鞋柜中间使用开放格,中间摆放饰品,起到了提升空间格调的装饰作用。
03客厅

客厅设计专注功能,造型上极为简洁,长条宽体布艺沙发材质柔软亲肤,还可坐可卧,实际使用体验远好于实木或皮质沙发。在色彩上,整体选用了浅色调,给人更加明亮轻快、无拘无束的感觉。沙发背景墙浅蓝色调给客厅定下了干净淡雅的基调。

而电视背景墙一面,使用了暗绿色作为底色,这是整个客厅空间最重的色调,使得电视背景墙自然的成为视觉中心。在电视背景墙后面布置灯带,在背景墙后形成一圈浅黄色光晕,和客厅其他灯光一起,既营造了客厅温馨的氛围,同时增加了客厅的现代感。
04餐厅

餐厅作为主要的用餐区域,需要温馨放松的空间环境。餐厅的酒柜、餐边柜等定制家具,使用了大量浅玫瑰金色门板。这种颜色偏暖且色调典雅,既能够增加空间的视觉温度,同时又能营造轻松自然优雅的格调。在餐厅中间,做了个带水盆的小岛台,满足业主的设计要求。在岛台的配色上,使用了偏冷色调的墨绿色装饰面,打破餐厅全暖色调的闷热,达到了平衡空间色彩的目的。
05主卧

作为业主夫妻的卧室,在设计上沿用了业主喜欢的简洁风格,白色调的墙壁,保证卧室空间的明亮。地面铺装从客厅的地砖换成原木色实木地板,让卧室空间更显温暖放松。床头灯和墙壁上的挂画都选用了有现代艺术特点的作品,在提升卧室格调同时增加卧室现代感。
06主卧卫生间

地面墙面都使用了浅灰色瓷砖铺装,显得简洁明亮干净,这种感觉对一个卫生区域非常重要。使用了干湿分离的设计手法,防止浴室的水溅到其他区域,减少了在卫生间滑到的几率,使用更安全。
07衣帽间

靠窗位置放跑步机,作为男主人的健身区,靠室内一侧安装定制衣柜作为女主人的衣帽间,两个空间之间通过半透明的屏风隔开,成为相对独立的空间。衣帽间通顶设计的大衣柜储藏空间巨大,造型简单的平板式门板更显大气,中间使用了玻璃门板,视觉上更通透、更有现代感,同时女主可以透过玻璃门看到里面的衣物,更方便查找。
08大女孩房

业主大女儿喜欢粉色,因此在设计她的房间时,在背景墙、家具、床品、窗帘配饰上大量使用浅粉色调。同时选用了异型吊灯,让空间更加灵动,加上童真十足的背景墙挂画,共同给业主的大女儿营造了一个粉色的童话世界。
09小女孩房

小女儿并不特别喜欢粉色。但是作为儿童的房间,在设计上还是要考虑到儿童的心理。房间设计时以白色为基底,配合上浅粉、嫩绿、橘黄等鲜艳的颜色,让房间更有青春活力的感觉。五角星造型吊灯让棚顶有了一丝星空的味道,床头的小夜灯灯光温和,可以在黑夜给女孩格外的安全感。
结语
后现代极简风格由现代风格、简约风格等多种深受欢迎的风格演化而来,集中了各个风格的优势,在设计上更加注重使用感受而非夸张装饰,回归了自然本真,近些年已经成为装修市场上的主流风格。如果您更喜欢轻松温馨的氛围,喜欢简单舒适的使用体验而非极致奢华的装饰,那么相信后现代极简风格将会是您最好的选择。
168
103
183
209
195
144
203
147
215
116 Copyright © 2012-202X
苏ICP备12014991号-8
联系邮箱:18951535724