温柔色系清新复古斜顶跃层大宅


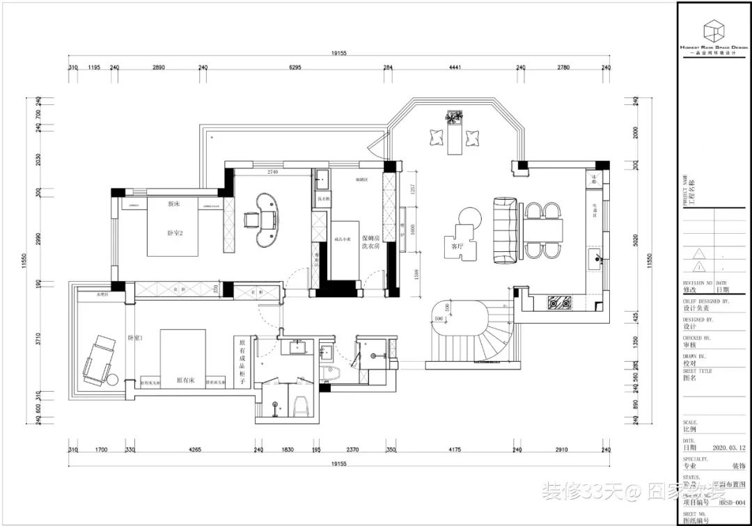
项目面积260平,造价200万,这是一套老房改造的项目,将老房重新定义,赋予新的生命,从原来的棕色系改为莫兰迪色系,更加轻快明亮,进门左手边做小件收纳区,右手边利用楼梯下方空间打造鞋柜

一层平面布置图

客厅以奶油色为主,墙顶面加入雕花石膏线条勾勒,将空间精致度提升一个档次

简约的家具布置出自然舒适的氛围,经久耐看,简单且温柔

客厅与餐厨之间通过弧形垭口过渡,奠定空间优雅格调

新建一堵矮墙作隔断,同时兼具小吧台功能,选用木质餐桌和藤编餐椅,自带中古气息

开放式厨房,浅色系的橱柜与墙砖结合,好看又亮堂

黄铜水龙头搭配陶瓷水槽,成为厨房最独特的装饰

进入次卧先来到书房

睡眠区,低饱和度空间加入深色家具,沉稳不失雅致,床尾是整排顶天立地大衣柜

主卧,把原来家里喜爱的家具保留了下来,天然的旧物感增加了岁月的痕迹,让家变得更温馨

靠窗打造休憩一角

构造优美的弧形楼梯是家中的一道别开生面的风景线

垂落的吊灯组增添层次和艺术感

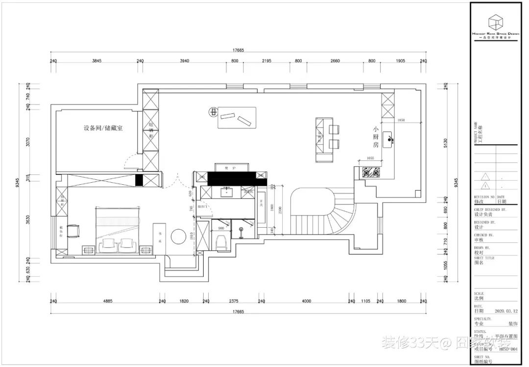
阁楼平面布置图

布置成品边柜和装饰画丰富过道

阁楼新增吧台休闲区,角落摆放复古小冰箱,既实用又能把它当作一件装饰品

往里走是小厨房,解决阁楼喝水泡茶的需求

利用过道打造起居室,壁炉两侧墙面内凹增设隔板,用于摆件展示与书籍收纳

一方小小的阅读空间

卧室,弧形门洞+双开门设计,仪式感满满

卧室做了充足的收纳区,床头背景护墙与收纳柜和谐统一,自带高级感

沿窗下方打造梳妆台,左侧是开放格,右侧是抽屉柜

摇臂灯可以根据需求调节照明位置,灵活实用
94
141
193
172
216
154
117
215
222
136 Copyright © 2012-202X
苏ICP备12014991号-8
联系邮箱:18951535724