夫妻二人真厉害,跃式装成轻奢风,满满的奢华感,高端大气上档次
前言:现代轻奢风格越来越受到年轻一代朋友的青睐,它相对于现代风格而言,色调搭配上更加的具有奢华之感,软装搭配也显得更高端大气上档次,但又不像欧式风格那样霸气,现代轻奢风的豪华感是低调的,是内敛含蓄之美。
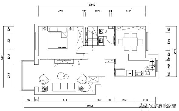
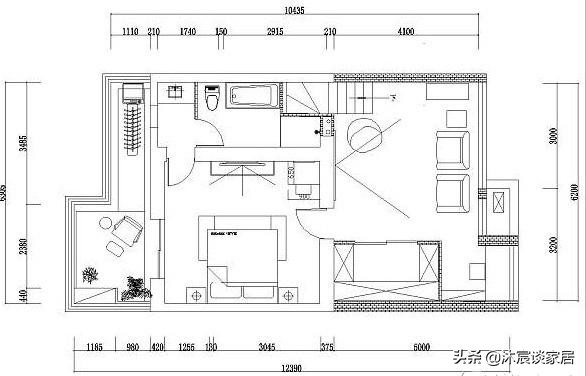
准确的说,今天分享的这套案例是一套跃式,跃式与复式的区别就是跃式是一套房内占两个楼层,用楼梯联系上下层,而复式在概念上多指为一层,我个人喜欢都称之为复式。这套复式面积为140平方,一楼客餐厅加厨房,外加一个卧室,二楼也有一个小客厅外加一个大卧室,功能布局为一家三口所使用,算为合理。夫妻二人将它打造成现代轻奢风格,看上去非常豪华大气。跟我一起来看看他们夫妻二人是如何来打造一个现代轻奢的美居室。


一楼玄关:推门进入便看到玄关,都说“无黄铜色不轻奢”,夫妻两人将玄关就打造的非常具轻奢范。入户鞋柜采用纯白色配上黄色线条,再加上鞋柜上面的黄铜色装饰花格,尺寸量身定制般合理,半通透的设计让空间感觉更为的开阔,顶上的黄铜色的吊灯,灯身似朵花,很有点缀效果,让人还没有进入内室就感觉到满满的奢华感。

玄关再切个镜头,从室内往外看,利用墙体的空隙再做一个储物柜,与墙体平行,柜门同样采用白色加金色线条,很是实用美观。

一楼客厅:镜头来到客厅,整体色调温馨奢华,无时无刻都将轻奢感给表露出来,黄铜色壁灯,吊灯,驼色的硬包,与地面灰色系地砖搭配相得益彰,甚至连地面的小波导线采用了黑白根边线,很好看。


一楼餐厅与厨房:开放式的厨房与餐厅融为一体,厨房橱柜与吧台连在一起,形成高低差,很是好看。



餐厅里整体色调落落大方,很有小资情调,配色非常的奢华。驼色餐椅配金色小腿,连墙上的装饰挂画,都透露着时尚的奢华之感。
一楼卧室:一楼为他们的小孩卧室,尽管是卧室,但夫妻两人在配色还是选择融合客餐厅,整体色调也颇有轻奢范。

二楼小厅:二楼地面都采用了木地板,二楼的层高不太高,尽量刷成大白墙,但软装上面一点也不含糊,金色纹理地毯,电视背景上的黄铜色小件,无时无刻都流露出轻奢范。

二楼卧室:不用我说太多,直接看图,夫妻两个搭配小能手,软装搭配很合理。

两个卫生间的设计都奢华感满满,洗脸盆用黑色配金色,在爵士白墙砖的映衬下,显得很有质感!

再来看阳台,阳台区域夫妻两人用了生态木,生态木效果确实不错。(设计:窝家里)

总结
这套复式在整体色调搭配上是非常合理的,夫妻二人打造现代轻奢风格,看上去真心觉得豪华大气。现代轻奢风格越来越受到年轻一代朋友的青睐,它相对于现代风格而言,色调搭配上更加的具有奢华之感,软装搭配也显得高端大气上档次,但又不像欧式风格那样霸气,现代轻奢风的豪华感是低调的,是内敛含蓄之美,所以喜欢这种风格的朋友,不妨参考一下。
我是沐宸,与您共同打造一个更加理想的居所,部分图片来源网络,侵删!
225
135
103
211
106
182
248
169
238
48 Copyright © 2012-202X
苏ICP备12014991号-8
联系邮箱:18951535724