北京小户型公寓,装修风格高级复古,细节设计匠心独具
在有限的空间内创造出无限的可能,这是对设计师们的一大挑战。”
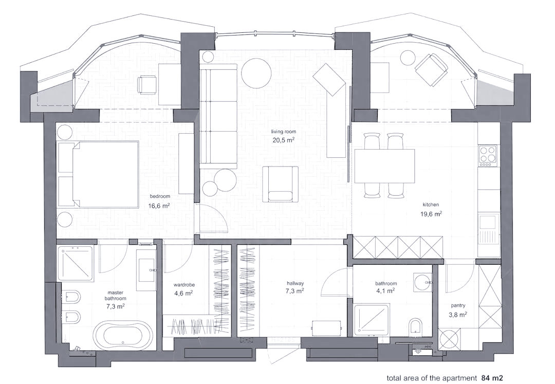
本期要分享的这套案例,位于繁华的北京,屋主是一位充满活力的95后小姑娘。她对新家的期望是既高级又复古,尽管这是一套仅有84㎡的两厅一室小户型公寓,但设计师们巧妙运用空间布局和匠心独具的细节设计,最终打造出了一个令人惊艳的居住空间,仿佛置身于“我住不起的模样”的梦幻世界。接下来,就让我们一起探索这个充满惊喜的新家吧!

户型布局
该公寓的布局设计独具匠心,由设计师Oksana精心打造。她巧妙地采用了“动静分区”的原则,将客餐厅与卧室进行了有效分隔。同时,客餐厨三个功能区域又通过精心的设计实现了巧妙联合,既形成了宽敞的空间感,又保证了居住的便捷性。整个居住动线设计得井然有序,既实用又美观。

玄关设计
该公寓的玄关区域采用了独立式设计,地板材质巧妙地与公共区域进行了区分。水磨石地面与木地板的完美结合,不仅营造了一种独特的入户仪式感,更实现了洁污的有效分区,使得整个空间既美观又实用。

玄关区域以简约风格为主调,配置了一款藤编材质的换鞋凳,配以轻盈的穿衣镜,完美满足屋主小姐日常出行的换衣需求。从材质到色彩的搭配,每一处细节都显得格外精致与独特。


玄关的另一侧,设计了一整排实木橱柜,采用悬空式风格,既实用又节省空间。橱柜下方巧妙地设置了鞋子收纳区,而内部则可用来存放常穿的衣物。这种大容量的设计,非常适合小户型公寓的日常收纳需求。

客厅
穿过一道别致的拱形门洞,便进入了客厅区域。一进门,便能感受到浓郁的复古艺术气息,仿佛置身于一个充满个性的安静世界。这得益于色彩与材质的绝妙搭配,使得整个客厅都弥漫着一种独特而迷人的氛围。

客厅中,引人注目的设计元素非朱红色吊顶莫属。通过灯槽与灯带的巧妙装饰,不仅为空间增添了复古韵味,更赋予了一种别样的奢华感。在软装方面,设计师精心挑选的艺术品画作和金属边几等物件,都使得客厅流露出一种不俗的高级气息。


在照明设计上,客厅主要采用吸顶灯作为主光源,辅以落地灯,并巧妙地融入了灯带元素,既美化了空间,又确保了实用性。值得一提的是,吸顶灯的加入巧妙地平衡了客厅层高较矮的不足,使得整个空间在视觉上更加开阔。


由于屋主是一位小姐姐,且独自居住,因此客厅的设计主要考虑了她的个人喜好和安全。客厅采用了去电视化的设计,以边柜为主要焦点,巧妙地融合了木质与金属元素,展现出刚柔并济的独特美感。此外,绿色的盆栽和花卉作为点缀,为客厅增添了一抹复古的情怀。

餐厅
客餐厅区域通过精巧的推拉折叠门相连通,这种设计不仅增强了两者之间的互动性,还为每个功能空间增添了独特的仪式感。


为了兼顾生活的便捷与安全,我们主要采用了暗藏式安装方法,对推拉门进行设计。这种设计不仅有效解决了高低床的问题,更让推拉门在美观度上有了显著提升。

餐厨一体化的创新设计,巧妙地将餐厅、烹饪区和高柜区融为一体,营造出宽敞的烹饪与用餐空间。此外,一个独立的景观阳台也被巧妙地融入其中,使得整个居家环境显得格外通透与开阔。

再来看餐厅区域,一张实木餐桌配以别致的飞碟吊灯,为整个空间注入了新颖与时尚的气息。这样的设计不仅突出了餐桌作为餐厅核心的地位,更增添了几分温馨的生活气息。


阳台
阳台作为餐厨区域的延伸,巧妙地融入了边几与休闲椅,再配以玻璃元素的橱柜,使得整个空间光线通透,为餐厨区域增添了一抹朦胧而迷人的美感。


为了与屋主小姐姐的审美相契合,并与整个家居风格相呼应,我们精心挑选了原木、水磨石以及棉麻等材质,以此为基础进行搭配。这样的选择,不仅打造了一种温馨舒适的居住环境,更让整个空间弥漫着一种轻松与自在的氛围。

厨房设计以一字型橱柜与独立式高柜相结合,家电则巧妙地以嵌入式方式融入柜体,使得整个空间在视觉上更为通透且简洁大方。

同时,采用彩色石英石与黑色台面的设计,不仅为厨房增添了一抹亮色,更赋予了它“耐脏”的实用特性。这样的搭配,让小姐姐们在厨房烹饪一日三餐时,能够更加从容不迫,轻松应对各种烹饪需求。

卧室设计
进入卧室,你会立刻感受到与主空间相呼应的设计风格。材质与色彩的延续,以及巧妙运用的玻璃隔断,都为卧室带来了充足的光线。而床头吊灯与抽象挂画的精致搭配,更是为整个空间增添了一抹艺术气息。

而卧室的天花板与地板铺贴方式,均展现出别具一格的设计感。地板以纵横交错的纹理进行铺贴,形成一种独特的视觉效果,而天花板则选用了菱形状的艺术壁纸,为空间增添了一抹静谧而沉稳的气息。


卧室阳台设计
卧室外接的独立阳台被巧妙地打造成为一个宜人的书房角落,同时也是屋主小姐姐的精致梳妆台。特别值得一提的是,钻石型的窗户设计不仅美化了空间,还极大地提升了卧室的采光效果。


卫生间设计
卫生间的装修风格以个性化和复古风情为主,镜前灯与圆镜、洗漱池的组合,使得空间既显得高端又不失品味。此外,地板选用了具有抽象纹理的大理石材质,而墙裙则巧妙地搭配了复古小瓷砖,这种不同风格的交融,营造出一种别具一格的质感。

写在最后:
这套小公寓在设计上别出心裁,无论是在色调的选择、布局的规划,还是材料的搭配上,都展现出了独特的个性。空间利用得恰到好处,每一个细节都流露出美观与时尚的完美融合。这样的设计,你是否也心动了呢?
227
119
125
154
115
102
130
185
209
217 Copyright © 2012-202X
苏ICP备12014991号-8
联系邮箱:18951535724