「工艺·前沿」橱柜设计4大秘诀,德系精工柏丽首次公开细节


橱柜在厨房空间中有着相当重要的地位。我们常用的餐具、杯子、调味品等都需要一个存储空间,橱柜就是这样一个理想的储存空间。

德国人的严谨众所周知,橱柜的柜体工艺、配件细节、整柜安装是检验橱柜品质的重要环节。这些环节中有不少值得注意的问题,那么德国人是如何处理的呢?
今天我们就来了解一下代表着进口橱柜的佼佼者——德国柏丽nobilia精工橱柜。本文主要关注以下问题:
1. 橱柜的构造;
2. 设计要点及注意事项;
3. 安装流程及要点。
橱柜的构造

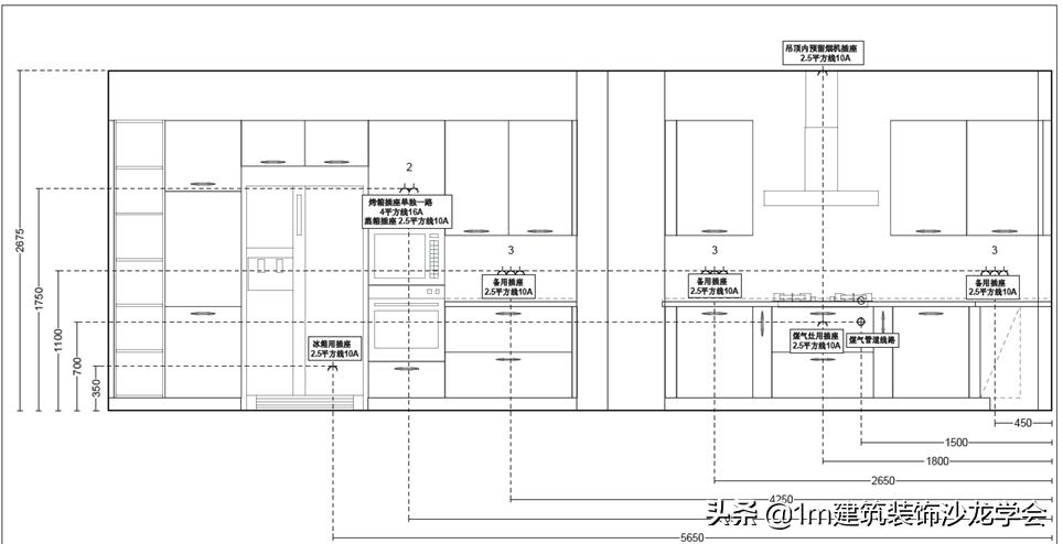
橱柜立面效果图
厨房橱柜一般包括地柜和吊柜这两种柜子的组合。地柜是与地面接触的柜体,吊柜则通常安装在墙上,这样能够充分有效的利用厨房空间。下面我们就来看看橱柜的具体构成吧。
柜体

橱柜的主体部分,由以下部分组成:
1)柜门:作用是打开或封闭柜体,在我们的视线中占据主要部分;
2)侧板:柜体两侧封闭柜体的板材;
3)背板:柜体背面的板材,通常不在我们的视线范围内;
4)横梁:作用是为层板提供支撑;
5)层板:分割柜体内部空间,使柜体内部空间分布更加合理;
6)底板:柜体底部的板材;
7)台面:地柜的顶面,根据不同的设计风格,可以选择石材或金属等材质作为台面。

配件

除了橱柜主体,配件也是构成橱柜的重要部分,橱柜的配件主要有:
1)把手:除了开关柜门,也起到装饰作用;
2)五金件:主要有开关柜门用的铰链,也包括柜体安装的其他五金件;
3)柜脚:主要作用是支撑柜体;
4)柜体前封边:用于柜体外转角的收边包边;
5)踢脚板:柜体底板与地面之间空隙的收口板。

橱柜的构造并不复杂,不过要想好看、实用,有些设计要点我们还是需要注意的。下面我们就来看看德国柏丽nobilia设计的秘诀吧!
设计要点及注意事项


德国柏丽橱柜的设计要点主要有以下4个方面:
现场尺寸的测量

必须是在贴完砖,做完顶地面的厨房完成面测量。我们需要根据正确的尺寸和现场情况来调整厨房的方案,正确的现场测量是整个橱柜方案的基础,因为在现场不仅是厨房尺寸的测量,还可以得到很多设计时需要知道的信息。具体测量细节包括:

现场尺寸测量示例
1)厨房现场尺寸:测量时要根据墙体是否粉刷和装修面材种类(瓷砖或大理石),来预估完成面尺寸。粉刷的一般扣2CM,没有粉刷的扣4CM,如果贴其它材料另外计算;
2)管井尺寸:如水管井或烟道井未施工,需要与装修公司沟通确认尺寸;
3)管道布置:记录上下水的位置,煤气管道的位置,排烟道的位置,看是否合理。如果不合理是否可以优化;
4)墙体吊顶构造:墙体材料,是否能够承重,现场吊顶高度,有没有梁或者预埋设备,空调设备排风管道等;
5)窗台高度窗户开启方式:注意窗台高度是否低于台面后挡水,内开窗是否会碰厨房水龙头,有没有突出窗台板;
6)门套厚度门扇开启方式:注意门套厚度不要影响抽屉或者电器开门,确认移门或者开门。

由于每个厨房都是不一样的,因此在现场尺寸测量过程中,沟通是非常重要的,沟通过程中要注意以下几点:
1)厨房装饰墙面有没有特殊材料(如玻璃,不锈钢等);
2)电器配置(国产的需要了解详细尺寸),电器的功率,嵌入式电器型号;
3)地暖分水器、热水器、煤气表的位置等;
4)有没有柜内灯,有没有配粉碎机、净水器等;
5)有腰线的墙面贴砖和台面后挡水的关系,地面贴砖和踢脚线的关系等。

橱柜设计规范


1)安装图纸应具备完整性
安装图纸应该是一套完整的厨房图纸,包括厨房的所有元素,如柜体、台面、水盆龙头、厨房电器等;
2)图纸标注尺寸应该与现场吻合
安装图纸中的尺寸是贴砖完成后的净尺寸,该尺寸应与现场测量尺寸吻合,包括吊顶高度。房屋中的墙体、管井等构造尺寸应与现场吻合,且在图纸中能正常显示(各个立面)。燃气主管、燃气表位置及地暖分水器等设备需在图纸中有位置示意;
3)安装图纸应保持图纸的整洁性、易读性
安装图纸中水平方向及垂直方向尺寸应完整,且易于读取,不要有过多零碎尺寸。与安装无关的带尺寸挂件及装饰物等东西可删减;

示例
4)各种柜体内的配件应在立面图中标出
各种柜体内的配件,如刀叉盒、防滑垫、防潮铝板、垃圾桶等,应在相应柜体上进行标注,以便安装时正确放置;
5)灯具及挂件等安装位置应在图纸中注明
灯具及挂件等在图纸中显示位置不精确,应单独注明安装位置或安装定位的的原则;

示例
6)柜体内的隐藏电器应注明,如内置冰箱、净水处理器等;
7)外露电器应注明电器名称,如烤箱、蒸箱、消毒柜等;
8)客户自购电器、水盆等需注明尺寸等要求,尤其是吊柜包烟机处理方式,需对烟机护罩的深度做出要求;
9)对厨房各部位的台面材质进行标注(人造石或原装台面)。
水电预留规范


1)水电点位数量满足需要
综合考虑固定电器、备用电器、照明灯具数量来预留电位,综合考虑用水及排水设备需求预留上下水点位(有些可共用);
2)水电点位功能满足需求
电位预留需考虑电器功率,根据设备要求预留10A、16A或32A电源,非10A电源必须文字说明,隐性用水及排水设备要考虑周全(带制冰冰箱、无水箱蒸箱等);
3)水电点位位置满足需求
电位预留需考虑电器电源线长短,不得影响电器本身安装。上下水点位预留也需考虑龙头软管长度及设备上下水管的长度;

示例
4)水电点位预留力求位置准确
水电点位预留需尽量以已有的结构墙为基准进行标注,充分考虑收口板大小的调节性带来的误差影响,考虑地面铺砖及踢脚高度调整带来的误差影响;
5)水电点位预留考虑现场可实施性
电源点位需要考虑电器的电源线长度(嵌入式冰箱、烤箱等),上水点位考虑电器的管道长度(洗碗机、洗衣机等),下水点位需考虑排水长度、坡度等,最好接近现有的下水点且通过处不能有电器设备;
6)水电点位预留要考虑后期安装及检修便利性
水电点位预留尽量避免穿越橱柜,减少后期橱柜的开孔及裁切。水电点位不要留在太隐蔽的地方,最好视线所及、触手所及,岛台下留地插需慎重,避免使用及开孔不便。

水电预留规范示意图
设计注意事项


1)吊柜包烟机设计及订购指南
在处理吊柜包烟机设计时,需考虑烟机装饰罩进深。可以订购封和两个柜体板将烟罩封住。其次考虑烟罩靠墙,烟机两侧柜体内需单独留电源点位及变压器。

吊柜包烟机
2)安装细节处理

注意:橱柜贴墙安装时,如果墙体有门套线,橱柜靠墙需订收口板,否则会造成柜门无法打开或无法开启90度,若是五金柜或嵌入式电器,将影响功能使用;

注意:功能地柜(抽屉、拉篮)、转角功能柜(转盘)后方不能放分集水器、燃气表、净水器等设备;

注意:订购上翻门吊柜时,需注意不能贴吊顶安装,且吊柜上口距吊顶高度不能小于180mm,否则影响开门;

注意:订购折叠上翻门吊柜时,注意不能贴吊顶安装,且吊柜上口距吊顶高度不能小于195mm,否则影响开门;

注意:如果设计方案时,涉及到柜体横跨墙柱两侧时,请设计师提醒业主及装修单位,墙柱两侧墙面需保持水平;

错误示范
注意:上翻门或折叠上翻门吊柜如果贴墙安装(旁边没有收口板),在门板开启轨迹不能有开关面板或弱电设备等物品阻碍门板开启;

错误示范
注意:吊柜贴顶安装时,顶部的空调通风口、灯具等会影响柜门的开启,设计方案时应避免;如果有吊柜灯,变压器无处可放,只能在吊顶开孔,放在吊顶内;

注意:设计师设计装饰线时需注意吊顶造型、高度及进深;



错误示范
注意:上装饰线进深突出柜体、上装饰线及灯饰线突出柜体、上装饰线拼接在一起时,注意与墙、柱关系。
安装流程及要点

以上是德国柏丽橱柜设计过程中的一些规范和注意事项,接下来我们再来看看他们的橱柜安装流程及要注意的地方。
安装流程:
1)货物运输到后,安装人员把货物搬运到安装准备区;
2)安装准备区应和业主或者装修公司协商好,在方便安装的前提下把安装对其他事物造成的影响降到最低;
3)避免装修公司的施工作业、业主的生活、其他居民的出行等因素影响安装现场;

4)安装开始前安装人员查看确认单,理清场地,并把柜子的抽屉、门板、拉篮及层板等整齐码放在固定的区域,保护并提高安装效率;

5)安装柜体时应该从“里”向外安装,切记不能从“外”向里安装;
备注:“里”指的是没有收口板的柜子,没有收口板意味着无法调节距离,那么它的位置就是固定的,所以必须先安装。“外”指的是有收口板的柜子,有收口板意味着可以在一定范围内调节距离,所以可以根据实际尺寸灵活安装。

错误的安装顺序

正确的安装顺序
6)灶具柜两侧没有收口板,并且应与烟机居中,所以可以根据烟道确定安装位置。灶具柜安装好后,根据灶具柜的位置,便可在其两侧安装其他柜子;

7)根据电器的尺寸留出相应空间,并在上方加根横梁,避免安装过程中发生位移;

8)根据现场实际情况收口;

9)底柜全部安装完成后利用柜脚调整水平,柜子后面的柜脚如果手够不着,可以用螺丝刀在柜体内部调节;

10)烟机和灶具居中,确定好烟机位后,烟机两边的吊柜分别向两侧逐个安装,最后用收口板收口;

11)根据烟机位置确定好吊柜位置后,安装吊码杆,吊码杆注意水平安装,打孔时注意是否会碰到墙内的管线;

12)吊码杆安装好后,把吊柜挂掉吊码杆上,调节吊码,使柜子侧板靠墙并保持水平;

13)根据烟机一侧吊柜位置确定另一侧吊柜位置。若燃气管道影响吊柜正常安装,则根据燃气管实际尺寸对吊柜进行裁切,保证吊柜正常安装;

14)主体安装完成后,按顺序依次安装层板、门板、抽屉,安装完成后,清理现场并对整套柜子做成品保护。
小结

厨房不仅是烹饪场所,也是情感交流和社交的空间,在日常生活中扮演着很重要的角色。德国柏丽nobilia将科技应用于设计软件的开发和生产线的不断完善,将德国工艺的传承和创新诠释得淋漓尽致。好了,今天的分享就到这里了,希望能给小伙伴带去帮助!
最后还是用一张思维导图总结一下知识点:

136
153
248
90
124
135
216
151
156
125 Copyright © 2012-202X
苏ICP备12014991号-8
联系邮箱:18951535724