62平公寓混搭风,红砖做沙发背景墙,阳台改榻榻米,美!
微信又㕛叒叕改版了~
更新后很多小伙伴都说找不到妙妙了,
茫茫人海中,为防大家走失,请大家
点击上方 “榻榻米装修设计” → 点击右上角“...” → 点选“设为星标”
为妙妙加上星标,就再也不会迷路啦!
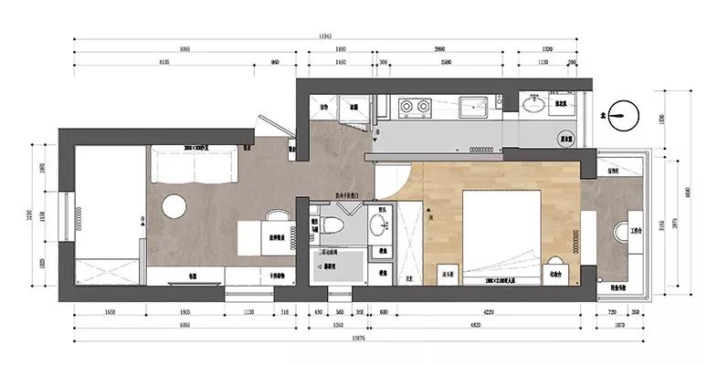
今天齐家小编分享的是一套建筑面积62平米的混搭风小户型单身公寓案例,房子的格局有些类似于长条形,但又是三面采光的格局,所以整个家还是比较明亮的。设计师用红砖墙搭配木质感,来营造出复古而又温馨的感觉,让人羡慕不已。

平面布置图

入户没有玄关走廊的户型,设计师在入户门的边上摆放一个矮鞋柜,满足一家人的使用需求。沙发背景墙做了红砖墙的设计,非常独特。

客厅的电视背景墙被刷成了浅灰色,客厅边上的阳台改造了榻榻米地台,也让家里多了一个备用卧室。日式格栅门给客厅增添了禅意感。

餐厅位于客厅的角落处,卡座和电视柜连通起来,显得更为简洁。把餐厅放在窗户的边上,吃饭的时候也会觉得更舒服。

厨房是个狭长的空间,橱柜也做了一字形的布局,白色的吊柜搭配木色的地柜,整个厨房空间给人一种简洁又舒适的感觉。

厨房的外面是生活阳台,设计师把两者打通,让空间显得更为宽敞,洗衣机和缝隙柜结合,能够满足洗衣服的需求。

卧室的墙面也被刷成了灰色,搭配这款灰蓝色的皮质床,显得更有格调。齐家小菜很喜欢这个木色和白色结合的衣柜,美观大方。

屋主把其中一侧的床头柜,换成了一个梳妆台,这样平时使用也会方便很多,而且梳妆台也可以起到床头柜的作用,反正高度差不了多少。

卧室外的阳台除了满足晾晒的需求外,设计师还在底部做了书桌柜,让阳台成为一个书房工作区,避免屋主在家不好办公的问题。

卫生间的面积不大,但也用浴帘和挡水条做了干湿分离的设计,洗手台的侧方还做了壁龛的设计,让卫生间多出不少的储物空间。
欢迎参考!
94
180
123
211
208
157
178
89
206
225 Copyright © 2012-202X
苏ICP备12014991号-8
联系邮箱:18951535724