干挂石材施工方案
干挂石材施工方案
目 录
一、工程概况 3
二、编制依据 4
三、施工部署 4
四、主要施工方法 5
五、质量要求 11
六、质量保证措施 13
七、成品保护 13
八、施工注意事项 13
九、安全、文明施工措施 14
十、环境保护措施 15
十一、季节性施工措施 15
干挂石材施工方案
一、工程概况
**************************教学楼,框架结构,位于*********************,总建筑面积5048.28M2,西侧地上三层,东侧地上四层,建筑高度: 西侧13.70M,东侧17.55M,为多层公共建筑,建筑工程等级为二级,耐火等级为二级,屋面防水等级为I级,建筑设计使用年限为50年,抗震设防烈度为八度。
设计说明:
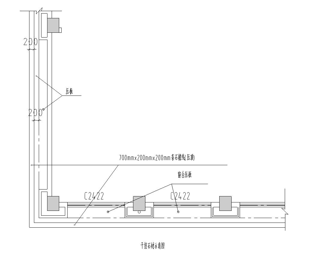
外墙3:部位:雨棚干挂石材。做法详见干挂石材节点图。板材采用湖北白麻花岗岩,规格700mmX350mm, 厚度30mm,单侧长边刨30mmX5mm 阴角。条石檐线(压顶)采用湖北白麻花岗岩。规格1000mmX200mmX200mm,实心内弧面造型见详图。
外墙4:部位:一层窗台以下。做法详见干挂石材节点图。板材采用芝麻白花岗岩蘑菇石,规格700mmX350mm, 条石檐线(压顶)采用湖北白麻花岗岩。规格1000mmX200mmX200mm,实心内弧面造型见详图。

二、编制依据
1、 施工图纸及图纸会审、变更、技术核定、施工组织设计
2、《建筑工程施工质量验收统一标准》GB50300—2013
3、《建筑装饰装修工程质量验收规范》GB50201—2018
4、《金属与石材幕墙工程技术规程》JGJ133-2001
5、《建筑物防雷设计规范》GB 50057-2010
6、《建筑幕墙》GB/T21086-2007
7、《天然花岗岩建筑板材》GB/T18601-2001
8、《建筑板材放射性核素限量》GB6566-2001
9、《紧固件机械性能、不锈钢螺栓、螺钉和螺母》GB3098.1-GB3098.6
10《碳素结构钢》GB700-2006
11《硅酮建筑密封胶》GB14683-2003
12《饰面石材用胶粘剂》GB24264-2009
三、施工部署
干挂石材是本工程的重点和难点,是确保按时完成工期的关键节点,造型多,收口多。根据现场实际情况,按照楼号划分施工段,各个专业的施工队在不同的施工段进行流水作业施工,最后进行边、角结合部的处理和收尾工作,在工作面允许范围下,同时分步进行施工。
3.1施工顺序安排
干挂石材施工作业顺序:放线测量 后置埋件安装 金属骨架安装 石材安装 收口打胶 淋水试验
3.2材料准备
3.2.1石材:根据设计要求,确定石材品种、颜色、花纹和尺寸规格,并严格控制、检查其抗折、抗拉及抗压强度,吸水率、耐冻融循环等性能和放射性等。
花岗石板材的弯曲强度应经法定检测机构检测确定,其弯曲强度不应小于8.0MPa。
3.2.2干挂胶粘剂:用于粘贴石材背面的柔性背衬材料,要求具有防水和耐老化性能。
3.2.3中性硅酮耐候密封胶,硅酮结构胶以及干挂石材专用环氧树脂胶,性能必须符合设计要求和规范规定。
硅酮结构密封胶、硅酮耐候密封胶必须有与所接触材料的相容性试验报告。
橡胶条应有成分化验报告和保质年限证书。
3.2.4干挂件、膨胀螺栓、连接铁件等配套的铁垫板、垫圈、螺帽及与骨架固定的各种设计和安装所需要的连接件的质量,必须符合要求。
3.2.4各种型钢材料规格、质量必须符合设计和规范要求。
3.3施工人员设置

四、主要施工方法
4.1放线测量
4.1.1外墙面水平线以设计轴线为基准。使外墙面距设计轴线误差不大于1cm。
4.1.2放线的具体原则是:以设计各内墙轴线定窗口位置,以±0.000线定窗口下水平线,弹出窗口井字线并根据二次设计图纸弹出型钢龙骨位置线。每个造型柱大角下吊垂线,给出大角直控制线。放线完成后,进行自检复线,复线无误再进行正式检查,合格后方可进行下步工序。
4.2后置预埋件安装
通过对所有外立面装饰工程统一放基准线,根据干挂石材施工图纸,进行后置预埋件安装。后置预埋件:上下两道均采用200X300X10mm热镀锌钢板,上一道用4M12x250mm穿墙螺栓(遇楼梯间墙用4M12x350mm),下一道用4M12x160mm特殊倒锥形化学锚栓固定(上下两道均采用50mmx50mmx5mm不锈钢垫片)。在安装化学螺栓时,必须把孔内用毛刷清理干净,再用风鼓吹出孔内灰尘,将高强化学胶管按方向置入孔中,用电动工具将螺栓钻入孔中,转速应不大于750转/分。根据施工现场环境温度,等待足够时间硬化:温度为20℃—30℃,硬化时间需要20分钟;温度为10℃—20℃,硬化时间需要45分钟;温度为5℃—10℃,硬化时间需要1小时;温度为0℃—5℃,硬化时间需要2小时;温度为-5℃—0℃,硬化时间需要5小时;化学锚栓未硬化前严禁触动。
根据该工程基准轴线和中线以及基准水平点对安装完的预埋件进行检查和校核,一般允许位置偏差为±20mm。如有预埋件位置超差而无法使用或漏放时,应及时给予调整,并必须报监理和设计单位审核批准,全部安装完后,应在现场做拉拔试验,并做好施工记录。
4.3金属骨架安装
4.3.1骨架采用双层作法,第一层为主要承重骨架,采用8#镀锌槽钢,沿墙面竖向布置,间距根据图纸实际测量,0.8-1.20m。主骨架通过连接件和埋板与主体连接,要求安装牢固,满足设计要求。第二层为次骨架,即挂板骨架采用L50×5镀锌角钢,与主骨架焊接连接。
4.3.2立柱与埋板之间的连接件为300-400mm长8#镀锌槽钢角码。连接件先依据设计图纸加工出成品。安装时把连接件临时固定在槽钢上,但不要把螺栓上紧,然后根据立柱垂线位置和水平50线临时固定槽钢,这样连接件与埋板的位置就确定了。把连接件焊到埋板上,焊接处要满焊,焊缝高度4-5mm,焊缝去掉焊渣后刷防锈漆两遍。
4.3.3镀锌8#槽钢立柱加工:依据施工图纸、埋板的位置和水平50线,在槽钢腹板上钻M12的孔,用两个2M12×110不锈钢螺栓与连接件连接,固定槽钢。
4.3.4横梁即挂板骨架采用L50×50×5镀锌角钢,横梁安装前应整平调直,根据板材高度分格尺寸确定具体位置。
4.3.5横梁和立柱之间采用焊接,焊接时要采用对称满焊,以减少因焊接产生的变形。检查焊缝质量合格后,所有的焊点、焊缝均需作去焊渣及防锈处理,如刷三遍防锈漆等。
4.3.6骨架安装平整度要精确。在一段骨架施工完毕后,应及时向有关部门提出验收,作好隐蔽工程验收记录,经验收合格后方可进行下道工序,在未经验收和许可不得进行下道工序施工。
4.3.7金属构件安装按下列节点附图施工。







4.4 石材安装
4.4.1在骨架安装验收的基础上安排石材挂板施工,石材在安装前应予拼配色,检查石材规格尺寸及边角是否整齐,有无明显伤残及破坏,对质量不合格的石材一定要挑出单独存放,在具备以上条件后进行挂板安装。
4.4.2第一层作底板应特别注意水平度,水平线要反复测量不能大意。在直面墙阴角、阳角外设置通垂线,保证阴阳角垂直。不断检查墙面立线,是否正确如有问题及时调整,每按一层板块水平线滑动一次。
4.4.3板块由不锈钢挂件固定在次骨架上,不锈钢挂件规格是70×40×4mm,挂件与次骨架采用不锈钢螺栓M10×25mm连接,螺栓平垫弹簧垫齐全。石材安装合格后拧紧螺栓,石材切槽,槽内填充大力士胶固定。当安装时板块长度在1000mm内使用四点固定,1000mm以上的采用六点固定。窗台下板采用底面点粘AB胶固定。
4.5收口打胶
4.5.1在板块安装中,应及时检查安装标高位置,缝格保持均匀不得挤拉。板块之间留5mm±1mm宽缝隙,缝内填充泡沫棒,并留5mm深打石材专用硅硐胶。
4.5.2如发现问题及时纠正不得忽视,以免返工,做到安一块合格一块,每道工序做到一次交工合格。
4.6淋水试验
施上完毕后,采用对墙体按规范要求进行淋水试验以检测外表面的渗漏情况,如有漏点必须及时补胶。
五、质量要求
5.1主控项目
5.1.1石材幕墙主体结构上的预埋件和后置埋件的位置、数量及后置埋件的拉拔力必须符合设计要求。
检验方法:检查拉拔力检测报告和隐蔽工程验收记录。
5.1.2石材幕墙的金属框架立柱与主体结构预埋件的连接、立柱与横梁的连接、连接件与金属框架的连接、连接件与石材面板的连接必须符合设计要求,安装必须牢固。
5.1.3金属框架和连接件的防腐处理应符合设计要求。
5.1.4石材幕墙的防雷装置必须与主体结构防雷装置可靠连接。
5.1.5石材幕墙的防火、保温、防潮材料的设置应符合设计要求,填充应密实、均
匀、厚度一致。
5.1.6各种结构弯形缝、墙角的连接节点应符合设计要求和技术标准的规定。
5.1.8石材表面和板缝的处理应符合设计要求.
5.1.9石材幕墙的板缝注胶应饱满、密实、连续、均匀、无气泡,板缝宽度和厚度应符合设计要求和技术标准的规定。
5.1.10石材幕墙应无渗漏。
5.2一般项目
5.2.1石材幕墙表面应平整、洁净,无污染、缺损和裂痕。颜色和花纹应协调一致,无明显色差,无明显修痕。
5.2.2石材幕墙的压条应平直、洁净、接口严密、安装牢固。
5.2.3石材接缝应横平竖直、宽窄均匀;阴阳角石板压向应正确,板边合缝应顺直;凸凹线出墙厚度应一致,上下口应平直;石材面板上洞口、槽边应套割吻合,边缘应整齐。
5.2.4石材幕墙的密封胶缝应横平竖直、深浅一致、宽窄均匀、光滑顺直。
5.2.5石材幕墙上的滴水线、流水坡向应正确、顺直。
5.2.6石材幕墙安装的允许偏差和检验方法应符合表下列规定。
石材幕墙安装的允许偏差和检验方法
项目 允许偏差(mm) 检验方法
项次
项目
允许偏差mm
检验方法
光面
粗磨面
立面垂直
室 内
用2m托线板和尺量检查
室 外
表面平整
用2m托线板和塞尺检查
阳角方正
用20cm方尺和塞尺检查
接缝平直
用5m小线和尺量检查
墙裙上口平直
用5m小线和尺量检查
接缝高低
用钢板短尺和塞尺检查
接缝宽度
用尺量检查
六、质量保证措施
6.1保证图纸深化设计的完整性、合理性。以施工工艺简单、低成本为主要目标,进而保证施工质量和进度。
6.2保证下料单的精确性,下料单由现场设计制作、技术负责人和项目经理进行审核,以确保下料单的正确性和及时性。
6.3严把材料的质量关,制定材料的验收制度。对材料进场先准备检验报告;材料进场做好检查;使用前对材料也要进行检查,避免返工现象。
6.4技术交底制度:坚持以技术进步来保证施工质量的原则,编制有针对性的施工组织设计。由项目工程师自上而下,向施工人员层层交底,使施工人员人人心中有数。
6.5建立三检制度,实行自检、互检、交接检制度,做好文字记录,隐蔽工程由项目技术负责人组织工长、质量检查员、班组长检查,并做出较详细的文字记录。
七、成品保护
7.1要及时清擦干净残留金属饰面板上的污物,如密封胶、尘土、水等杂物,宜粘贴保护膜,预防污染、锈蚀。
7.2认真贯彻合理施工顺序,少数工种的活应做在前面,防止损坏、污染外挂石材饰面板。
7.3拆改架子和上料时,严禁碰撞干挂石材饰面板。
7.4外饰面完活后,易破损部分的棱角处要钉护角保护,其他工种操作时不得划伤面漆和碰坏石材。
7.5在室外刷罩面剂未干燥前,严禁下渣土和翻架子脚手板等。
7.6已完工的外挂石材应设专人看管,遇有损害成品的行为,应立即制止,并严肃处理。
八、施工注意事项
8.1严格控制石材板质量,材质和加工尺寸都必须合格。
8.2要仔细检查每块石材板有没有裂纹,防止石材板在运输和施工时发生断裂。
8.3测量放线要十分精确,各专业施工要组织统一放线、统一测量,避免各专业施工因测量和放线误差发生施工矛盾。
8.4预埋件的设计和放置要合理,位置要准确。
8.5根据现场放线数据绘制施工放样图,落实实际施工和加工尺寸。
8.6安装和调整石材板位置,可用垫片适当调整缝宽,所用垫片必须与挂件是同质材料。
8.7固定金属挂片的螺栓要加弹簧垫圈,或调平调直拧紧螺栓后,在螺帽上抹少许石材胶固定。
九、安全、文明施工措施
9.1 设专人每天进行现场的清扫、洒水工作,防止灰尘飞扬,保护周边空气清洁。
9.2 加强对职工的教育,严禁大声喧哗。现场实行军事化管理,对施工人员加强纪律教育。
9.3 合理安排施工作业时间和材料进场时间,不影响楼内其他工作人员的正常工作和休息,并严格按业主指定的路线进行材料的运输和工人的上下班行走。
9.4 贯彻以“预防为主,防消结合”的消防方针,结合施工中的实际情况,加强领导、组织落实、建立逐级防火责任制。建立消防、保卫制度,确保施工安全。做好施工现场平面管理,对易燃物品的存放要设专人负责保管,远离火源。
9.5 组织工地成立防火领导小组,对现场进行监控,及时消除隐患。各施工部位明确安全责任人员,实行挂牌制。
9.6对现场的操作人员进行消防保卫知识教育,提高施工人员消防保卫意识,每周一作为安全教育日,对施工人员及操作人员进行安全防火知识的教育,并充分利用板报醒目标语等多种形式宣传防火知识,从思想上使每个职工重视安全防火工作,增强安全防火意识。
9.7 施工现场按消防规定设置干粉灭火器。防火器材不得随意搬动,消防通道不得堆放其它材料,以保持消防道路畅通。在附近要写上119火警电话醒目标志。
9.8 由工地保卫部建立消防档案制,做好消防工作的基础资料。严格控制火源,现场如动用电气焊需事先办理用火证。电气焊用火时,周边不得有易燃物并有防火措施。
9.9 施工中电气设施的安装、维修,均由正式电工负责,严禁私自拉照明线。
9.10 坚持安全消防检查制度,发现隐患及时消除,防止工伤、火灾事故。
9.11 明确划定用火和禁火区域。
9.12 动火作业履行动火审批制度,动火操作人员持动火证上岗,并有专人看护。
9.13 对有火灾危险的项目施工,编制专项消防措施,设置警戒区域,并配备专职
警戒人员。
十、环境保护措施
根据施工企业的特点,本项目有可能出现的主要环境管理因素有:噪音排放、粉尘排放,主要管理措施如下:
10.1 建立环保组织机构,明确管理责任。
10.2 项目兼职环保人员负责组织环境管理计划的宣讲,并把每周一的安全教育与环保要求结合起来,对操作者进行环保交底,并做好交底记录。
10.3 制定有针对性的环保方案,采取有效的防尘措施和避免大气污染。
10.4为降低施工现场扬尘发生,施工现场应进行封闭围档。
10.5 施工现场必须每天清扫,经常洒水降尘。
10.6 施工现场主要施工道路每天设专人清扫。
10.7 施工现场建筑垃圾根据业主指定地点设专门的垃圾堆放区,并将垃圾堆放区设置在避风处,以免产生扬尘。根据垃圾数量随时清运出施工现场,避免途中遗撒和运输过程中造成扬尘。
10.8 调整施工噪声分布时间。
10.9 根据环保噪声标准(分贝)日夜要求的不同,合理协调安排施工分项的施工时间,将容易产生噪音污染的分项工程安排在白天施工。
10.10 所有材料运输车辆进入现场后禁止鸣笛,以减少噪音。
10.11 手持电动工具或切割器具应尽量在封闭的区域内使用。
10.12 降耗节能措施:项目经理部要尽量节约用水、用电,随时设专人进行监督,杜绝浪费水、电情况发生。
十一、季节性施工措施
11.1雨季施工措施
11.1.1做好防汛人员雨季培训工作,组织相关人员定期全面检查施工现场的准备工作,包括临时设施、临电、机械设备防护等项工作。
11.1.2夜间设专职的值班人员,保证昼夜有人值班并做好值班记录,同时要安排天气预报员,负责收听和发布天气情况,防止暴雨突然袭击,合理安排每日的生产工作。
11.1.3雨季前对现场所有的配电箱、闸箱、电缆临时支架等仔细检查,需加固的及时进行加固,缺盖、罩、门的及时补齐,确保用电安全。
11.1.4雨季所需材料、设备和其它用品,如草袋、塑料布、防尘网等由物资及设备
部提前准备,及时进场。
11.1.5下雨天气,严禁室外进行焊接作业。
11.1.6下雨天气,不能进行室外受雨水影响部位的注胶作业。雨后打胶时一定要注意清理、擦干板缝,然后在进行注胶。
11.1.7对于一些吸水的材料,如泡沫填充棒等,一定要室内存放。
11.1.8下雨天气,尽量避免石材板块(单元体)的室外搬运。同时避免幕墙的现场挂装工作。
11.1.9雨天室外不能操作,做室内工作:防火棉、托板安装。
11.1.10雨天施工,同样应注意室外安装设备的维护工作。应委派专职机修人员随时掌握设备的正常运行状况,并填写设备运行记录。严格避免事故的发生。
11.1.11雨天施工,专职电工应做到每天施工前,对所有用电设备,特别是开关、电线、接头等,进行全面的检查,避免漏电事故发生。
11.1.12雨天施工的时候,要做到雨期前对现场各种机具、电器、尤其是支架、吊篮、焊机、冲击钻、手电钻等,要采取防倒塌、防雷击、防漏电等一系列技术措施;要认真编制雨期施工的施工安全措施,加强对员工的教育,防止各种事故的发生。
11.1.13保护好露天电气设备,以防雨淋和潮湿,检查漏电保护装置的灵敏度,使用移动式和手持电动设备时,一要有漏电保护装置,二要使用绝缘护具,三要电线绝缘良好。
11.1.14当超过五级大风时,应停止外立面施工作业。
11.2夏季高温施工措施
根据本工程的安排,该工程开工后即将跨入夏季施工。为保证按总体进度时间完成任务,拟采用如下措施:
11.2.1根据工程进度,提前做好临时堆棚搭设工作,避免材料因太阳暴晒而影响质量。
11.2.2夏季施工因气温、工程施工安装部位及施工内容不同,根据现场条件的不同,则采取不同的夏季施工措施。以达到降温、防暑、改善操作环境、保证质量、控制工期、安全施工、减少浪费等目的。
11.2.3夏季施工时要做好安全措施,要防止架子打滑,高空作业人员要衣着灵便,
系好安全带,大风天不从事危险作业或高空作业。因夏季高温干燥,使用明火时注意防
火,应派值班人员看火监护,作好各种安全防护措施。
209
152
193
221
142
171
95
198
140
159 Copyright © 2012-202X
苏ICP备12014991号-8
联系邮箱:18951535724