89-110㎡3-4房,华润两大限价盘户型图出炉!
深圳所有新房开盘信息都会在上面发
光明华润的两个限价盘:润晖府、润曦府,带尺寸户型图出炉,得房率均超80%,两个楼盘基础户型一样,主力户型89-110㎡。
89㎡3房2厅,有4个户型,2个竖厅、2个横厅。
110㎡4房2厅,有2个户型,1个竖厅、1个横厅。
扫码进深房臻选打新群



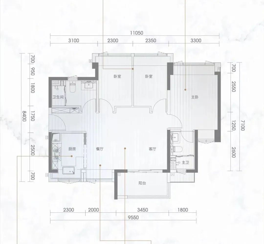
89㎡户型图
A01户型,3房2厅2卫,套内面积71.1㎡,实用面积77.9㎡,得房率80.3%。

A02户型,3房2厅2卫,套内面积71.1㎡,实用面积77.6㎡,得房率80.4%。

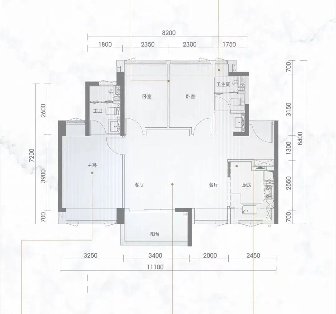
B户型,3房2厅2卫,套内面积71.7㎡,实用面积80.6㎡,得房率80.3%。

C户型,3房2厅2卫,套内面积71.7㎡,实用面积80.6㎡,得房率80.4%。

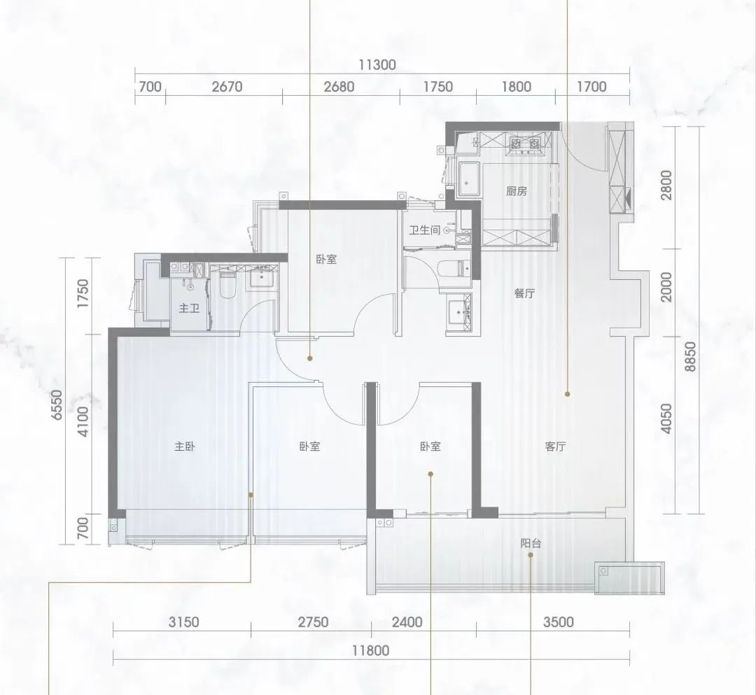
110㎡户型图
D户型,4房2厅2卫,套内面积89.1㎡,实用面积96.4㎡,得房率80.4%。

D户型,4房2厅2卫,套内面积89㎡,实用面积98.7㎡,得房率80.4%。

保利招商龙誉VS深铁珑境、万悦山VS桂语兰庭VS颐瑞府、深铁瑞城VS颐瑞府、凤鸣水岸VS万科未来之光等所有楼盘分析点评已更新到知识星球,加入我们知识星球会员,帮你分析和推荐,快速找到合适的楼盘。同时提供房产、资金流水、风险规避等问题解答!

润晖府、润御府位置图

华润润晖府
润晖府原为深圳第一轮土拍光明凤凰A503-0095宗地,位于光明区光明城站片区,8月4日结束的深圳第二轮土拍宗地A503-0096位于项目的东侧,0096宗地暂未命名,两者毛坯限价均为4.89万/㎡。
根据工程简介,润晖府规划4栋销售住宅塔楼、1栋公寓,根据规划设计,华润润晖府总用地面积17195.58㎡,新建规定建筑面积98015㎡,其中住宅95445㎡、商业2500㎡,规定容积率≤5.7,绿化覆盖率≥40%,机动车泊位数不少于 1536 辆,充电桩设置比例应不低于泊车位数量的 30%。

图源光明老兵
润晖府
施工平面图

图源网络
此外,华润润晖府周边还有两个限价项目,分别是深房光明里(限价4.46万/㎡),中海观园(已取证,备案均价4.72万/㎡),相对于后面的两个限价项目,华润润晖府限售价格则高了约4000元/㎡。

华润润曦府
润曦府原为深圳第一轮土拍玉塘A607-0888宗地,位于光明区玉塘街道,临近深铁瑞城。

根据规划要求,A607-0888宗地初始建设8010平方米的企业自持的保障性租赁住房,竞建设企业自持的保障性租赁住房面积,普通商品住房销售限价(均价)为47150元/平方米(不含室内装修)。
华润润曦府规定建筑面积89020㎡,其中:住宅80320㎡(其中物业服务用房170㎡),商业2500㎡,社区菜市场1000㎡,社区老年人日间照料中心800㎡,12班幼儿园(用地面积4000 ㎡,建筑面积4100㎡),社区管理用房300㎡,社区体育活动场地(用地面积700㎡),社区儿童游戏场地(用地面积 600㎡)。

此外,在玉塘片区还有另外一个限价项目——深物业御棠上府,其限价4.34万/㎡,据悉预计有五百多套房源。
需要注意的是,华润润曦府比深物业御棠上府更靠近地铁站,其他配套都相差无几,整体环境都相对一般,周边都是分布着较多的农民房和工业园区,生活配套略显缺乏,有待后期的开发完善。

保利招商龙誉VS深铁珑境、万悦山VS桂语兰庭VS颐瑞府、深铁瑞城VS颐瑞府、凤鸣水岸VS万科未来之光等所有楼盘分析点评已更新到知识星球,加入我们知识星球会员,帮你分析和推荐,快速找到合适的楼盘。同时提供房产、资金流水、风险规避等问题解答!

将入市新盘,点击名字即可阅读
南山区:
//////////////
福田区:
///
宝安区:
/////////////
光明区:
////
龙华区:
//////
龙岗区:
///////////
130
228
198
181
198
202
190
193
175
140 Copyright © 2012-202X
苏ICP备12014991号-8
联系邮箱:18951535724